This website is under development as improvements are being made
Guide Price £400,000

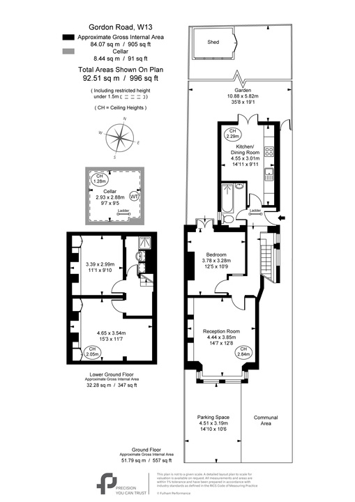
1 bed apartment for sale in Gordon Road, Ealing, London, W13 (ref: 930592)

Shortlist

Key Features

  • Expansive one-bedroom period conversion
  • Buyer information pack available
  • Large private rear garden
  • Totally chain-free
  • Secure with Reservation or Deposit Agreement
  • Off-street allocated parking
  • Private entrance
  • Additional gym / guest room / cinema room
  • Fantastic local amenities
  • Excellent transport links
Nestled in a prime Ealing location, this expansive one-bedroom period conversion offers a rare blend of character, space, and modern versatility. Unlike a standard one-bedroom flat, this home provides an incredible amount of space, featuring its own private entrance and a unique layout that caters to the demands of contemporary urban living.

The property boasts a generous reception room filled with natural light, a kitchen with space for dining, a serene and generous double bedroom, and a basement which boasts an additional shower room and other versatile spaces for a gym, cinema room or somewhere guests can stay.

Step outside to your own large, private rear garden - a true sanctuary in the heart of London. Whether you are hosting summer barbecues or enjoying a quiet morning coffee, this outdoor space is a significant asset. Additionally, the property includes an allocated off-street parking space, removing the stress of London parking.

Situated on Gordon Road, you are perfectly positioned to enjoy the vibrant shops, cafes, and restaurants of Ealing, while also benefiting from excellent transport links into Central London and beyond.

Stamp duty due

Based on a sale price of £400,000 the total amount of stamp duty payable will be:

*

Last updated: The calculator has been updated to reflect changes in stamp duty following the Autumn Budget on 30th October 2024 for April 1st 2025 onwards.

* This value is based on the standard rate and not applicable to first-time buyers or buy-to-let / second home buyers.

Further Details

  • New Listing: Launched in the last 10 days
  • Status: Available
  • Size: 996 sq ft (92 .53 sq m)
  • Council tax band: C
  • Council Tax Amount: £1814
  • Tenure: Leasehold
  • Parking Spaces: Allocated, Driveway, Off Street
  • Outside Spaces: Enclosed Garden, Private Garden, Rear Garden
  • Reference: 930592

What else you need to know

Leasehold

  • Lease expiry date: 2999-01-01

Utility supply, rights and restrictions

  • Utility supply
    • Electricity supply: Mains supply
    • Heating supply: Gas
    • Water supply: Mains supply
  • Other information
    • Has gas: Yes
    • Property age bracket: Victorian

Location