This website is under development as improvements are being made
Under Offer
£1,700 per month

1 bed apartment to rent in Kennedy Road, Hanwell, London, W7 (ref: 933409)

Shortlist

Key Features

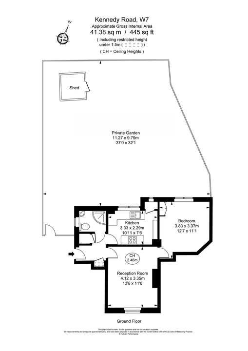
  • Fantastic ground floor maisonette
  • Private entrance
  • Expansive sunny private garden
  • Close to Elizabeth Line
  • Modern separate kitchen
  • Abundance of local amenities
  • Fully tiled sleek bathroom
  • Available now
Why we'd rent this home:

Walk through the private entrance and you’re immediately embraced by the extraordinary natural light and quietness.

This fantastic maisonette comprises a private entrance, modern fully-equipped separate kitchen, light-filled reception room, generous double bedroom, sleek bathroom, ample storage, and huge private garden - perfect for al-fresco dining and hosting summer barbecues. Other benefits include a new central heating system and wooden flooring throughout.

Beyond the garden, the area boasts an array of wonderful parks, green spaces and riverside spots. The location also possesses a tangible community vibe and fantastic local amenities, including independent bakeries, restaurants, shops, wine bars and coffee houses.

And there's the exceptional transport links - an Elizabeth Line journey is a relative magic carpet ride for commuters! This new, super-fast, air-conditioned tube line provides easy access into town, the airport and beyond. It's simply a game-changer.

In summary, this wonderful home offers a rare balance of calm, convenience and quality, ready to enjoy immediately.

Download Brochure

Rent affordability

Based on a monthly rental price of £1,700 you'd need an income of * per month or * per annum.

If a guarantor is required, they'll need an income of * per annum.

Further Details

  • Tenant information
  • Status: Under Offer
  • Council Tax Band: B
  • Council Tax Amount: £1587
  • Deposit: £1,962
  • Size: 445 sq ft (41 .34 sq m)
  • Parking Spaces: On Street, Residents
  • Outside Spaces: Back Garden, Private Garden, Rear Garden
  • Reference: 933409

What else you need to know

Utility supply, rights and restrictions

  • Utility supply
    • Electricity supply: Mains supply
    • Heating supply: Gas
    • Sewerage: Mains supply
    • Water supply: Mains supply
  • Other information
    • Has gas: Yes
    • Property age bracket: Modern

Location