This website is under development as improvements are being made
Under Offer
£2,250 per month

2 bed apartment to rent in Numa Court, Justin Close, Brentford, London, TW8 (ref: 889367)

Shortlist

Key Features

  • Beautiful two-bedroom apartment
  • Heating & hot water included
  • Stunning waterfront location
  • Sunny balcony with far-reaching views
  • Off-street allocated secure parking
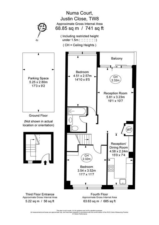
  • Over 700 sq ft
  • Gated riverside area
  • Two genuine double bedrooms
What the owner loves:

The first I knew of ‘The Dock’ was when I came to visit a friend and I have to confess I thought the flats were a little bit dated. But as the saying goes, never judge a book by its cover….

Surrounded by water, views across the river to Kew Gardens, and situated next to Syon Park it really is a unique place to live.

Watching the sunrise across the river, sitting on the balcony, listening to the birds, the flat really is a heaven away from the hustle and bustle of life.

But it’s close to Brentford High Street as well as public transport, so I’ve always felt I have the best of both worlds.

I will still be living on the dock and so looking not just for a tenant but a new nearby neighbour. I’m sure you’ll love the flat as much as I have.

Why we would rent this home:

This beautifully presented two-bedroom apartment in Numa Court sits proudly within a popular, well-designed residential development on the water’s edge. With over 700 sq ft of contemporary living space, two generous double bedrooms, a bright reception room with balcony access and far-reaching views, it’s the kind of space that makes everyday life feel just that little bit more luxurious. Practical touches like off-street allocated secure parking and heating and hot water included in the rent make sure this is as clever as it is comfortable.

What elevates this property from nice to special is your own semi-secret riverside enclave. Behind the gates lies a communal garden and walkway along the river, some areas exclusively for residents - perfect for lazy weekend picnics, morning strolls with coffee in hand, or simply watching the river’s moods change with the seasons. There’s something rare and delightful about having this calm, green haven on your doorstep: a quiet antidote to urban noise and a daily reminder that living well doesn’t always mean going far.

And then there’s the local area - just a short amble brings you to Brentford High Street, where riverside restaurants, snug cafés and neighbourhood pubs line up like friendly hosts ready to welcome you. The river itself is a magnet for scenic walks and social moments, while excellent transport links mean central London is genuinely within reach for work or play. It’s the kind of neighbourhood that feels like a discovery: quietly vibrant, impressively connected, and always ready to surprise you with another great lunchtime spot or sunset view along the water

Download Brochure

Rent affordability

Based on a monthly rental price of £2,250 you'd need an income of * per month or * per annum.

If a guarantor is required, they'll need an income of * per annum.

Further Details

  • Tenant information
  • Status: Under Offer
  • Council Tax Band: D
  • Council Tax Amount: £2041
  • Deposit: £2,596
  • Size: 741 sq ft (68 .84 sq m)
  • Parking Spaces: Allocated, Off Street, Private, Underground
  • Outside Spaces: Balcony, Communal Garden, Terrace
  • Reference: 889367

What else you need to know

Utility supply, rights and restrictions

  • Utility supply
    • Electricity supply: Mains supply
    • Heating supply: Communal
    • Sewerage: Mains supply
    • Water supply: Mains supply
  • Other information
    • Property age bracket: Modern

Location