Let
£2,600 per month

2 bed house to rent in Broomfield Road, Ealing, London, W13

Shortlist

Key Features

  • Beautiful Period Home
  • Fantastic Transport Links
  • Original Charm & Character
  • Great Schools Nearby
  • Excellent Condition Throughout
  • Close to Lovely Parks
  • Sunny Private Garden
  • Available From Mid-June
What the owners love....

The buzz of Ealing: If you are already living in Ealing, then you will be well aware of this. There is always something going on locally – the Ealing Art Trail in September; the local half-marathon, which passes right past the front door; Trash and Treasure, Street Food and Duck Pond (craft) markets; the new book festival (only two years old but making a big impact); the chaotic, colourful Tamil chariot procession in August, which passes the end of the road; the Summer Festivals (Blues, jazz, latin music, comedy and beer festivals), all under ten minutes away in Walpole Park. SO much to do, plus every variety of restaurant you can think of, two cinemas and a very high-standard amateur theatre (with a very inexpensive bar!)

The parks and green spaces: When the craziness of the festivals has passed, you have the rest of the year to enjoy the Victorian splendour of Walpole Park, with ponds, mature trees and an outdoor café, where you can sip your coffee and admire the scenery. Only five minutes’ walk from the front door to the park gate. A little further away are the wide green spaces of Llammas and Blondin parks and Ealing Common. There are three great, local parkruns on a Saturday morning – Southall (friendliest parkrun in London), Gunnersbury (passing a folly, two lakes and a mansion house) and Osterley (National Trust and suitably splendid)

You can walk to everything you need: Coffee shops, restaurants, a fantastic local greengrocer just two minutes across the road, gym under five minutes to the door - just at the end of the road, huge, shiny Waitrose only ten minutes’ walk, and a decent selection of shops in Ealing Broadway. You will have no trouble reaching your 10,000 steps a day.

Brilliant transport links: If you need to travel further afield, there are loads of buses from the end of the road. The Elizabeth Line is only ten minutes’ walk away at West Ealing and will whisk you up to Tottenham Court Road in under twenty minutes. Also, great transport links by car (M4, M3, M25 and M1 all reasonably close by)

Our own green spaces: It’s lovely not to be directly overlooked at the front of the house. The church tower and the garden are very easy on the eye and we see some great sunsets, looking west. The back garden is our own little patch of green and a lovely spot to have a mid-morning coffee or lunch in the sunshine.

We hope the new occupants will enjoy living here as much as we have.

Why we would rent this home....

A delightful cottage effortlessly combining rational appeal with emotional delight—a rare find in today’s market. This beautiful period property, rich in original charm and character, doesn’t just provide shelter; it offers 'story value' - a home with a past and a personality.

Its excellent condition means you can enjoy the aesthetic romance of yesteryear without sacrificing modern comfort. With fantastic transport links, getting anywhere becomes a breeze (or at least feels like it, particularly on the air-conditioned Lizzy Line trains!)

The proximity to brilliant schools and lovely parks makes it a haven for both the pragmatic and the playful. And let’s not forget the irrational joys: you’re steps from artisan coffee shops that serve flat whites with a flourish, independent restaurants where the menus change with the seasons, and local shops that somehow always have exactly what you didn’t know you needed.

What about the gorgeous private garden? That’s your own slice of hedonic escape - a daily dose of sunshine and sanity in a world that often offers neither.

20 Property images

2 bed house to rent in Broomfield Road, Ealing, London, W13 0
2 bed house to rent in Broomfield Road, Ealing, London, W13 1
2 bed house to rent in Broomfield Road, Ealing, London, W13 2
2 bed house to rent in Broomfield Road, Ealing, London, W13 3
2 bed house to rent in Broomfield Road, Ealing, London, W13 4
2 bed house to rent in Broomfield Road, Ealing, London, W13 5
2 bed house to rent in Broomfield Road, Ealing, London, W13 6
2 bed house to rent in Broomfield Road, Ealing, London, W13 7
2 bed house to rent in Broomfield Road, Ealing, London, W13 8
2 bed house to rent in Broomfield Road, Ealing, London, W13 9
2 bed house to rent in Broomfield Road, Ealing, London, W13 10
2 bed house to rent in Broomfield Road, Ealing, London, W13 11
2 bed house to rent in Broomfield Road, Ealing, London, W13 12
2 bed house to rent in Broomfield Road, Ealing, London, W13 13
2 bed house to rent in Broomfield Road, Ealing, London, W13 14
2 bed house to rent in Broomfield Road, Ealing, London, W13 15
2 bed house to rent in Broomfield Road, Ealing, London, W13 16
2 bed house to rent in Broomfield Road, Ealing, London, W13 17
2 bed house to rent in Broomfield Road, Ealing, London, W13 18
2 bed house to rent in Broomfield Road, Ealing, London, W13 19

Further Details

  • Status: Let
  • Council Tax Band: Band E - £2381
  • Deposit: £3,000
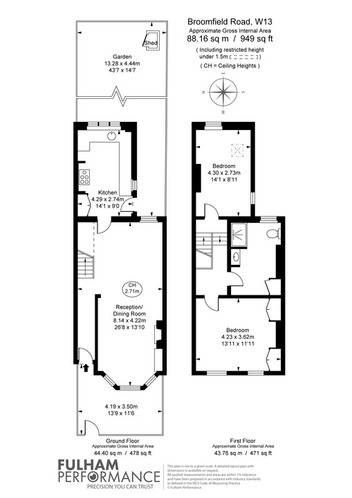
  • Size: 949 sq ft (88 .16 sq m)
  • Parking Spaces: On Street, Permit, Residents
  • Outside Spaces: Back Garden, Enclosed Garden, Private Garden, Rear Garden
  • Reference: 653146

What else you need to know

  • Has gas: Yes
  • Property age bracket: Victorian

Location

Similar Priced Properties

2 bed apartment to rent in Valley House, Manor Road, Ealing, London, W13
Let
2 bed apartment to rent in Valley House, Manor Road, Ealing, London, W13 £2,500 per month
2 2 1

Why We’d Rent It ❤️ This pocket of West Ealing is quietly levelling up. From independent coffee spots and boutique gyms to the long-awaited arrival of the Elizabeth Line, it’s a neighbourhood on the rise—and this flat is perfectly placed to...

2 bed apartment to rent in Wilde House, Avenue Road, Acton, London, W3
Let
2 bed apartment to rent in Wilde House, Avenue Road, Acton, London, W3 £2,500 per month
2 2 1

What The Owner Loves: The balcony facing the park is my favourite part of my flat. Sipping coffee in the morning, listening to the birds and watching people passing by or kids playing in the playground are moments I will miss very much! I had 5...

3 bed apartment to rent in Windsor Road, Ealing, London, W5
Let
3 bed apartment to rent in Windsor Road, Ealing, London, W5 £2,725 per month
3 2 1

Welcome to this exquisitely renovated three-bedroom, two-bathroom garden flat situated in the prestigious Windsor Road. Offering a generous 820 square feet of elegant living space, this property is tailored to the discerning tastes of young...