Sold
Guide Price £450,000

1 bed apartment for sale in Gordon Road, Ealing, London, W5 (ref: 575171)

Shortlist

Key Features

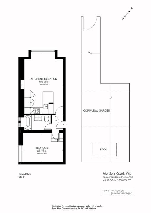
  • Beautiful Ground Floor Flat
  • Close to Pitshanger Village
  • Stunning South-Facing Communal Garden
  • Moments from Ealing Broadway
  • Luxurious Heated Swimming Pool
  • Circa 550 square feet
  • Exceptional Finish Throughout
  • Offered Chain-Free

Video

What the owner loves ❤️:

"We are so pleased to have been able to call this flat our home for the past few years. It's such a peaceful environment and a welcome retreat from the bustle of central London. The garden is a wonderful place to relax - being south-facing it's a real sun-trap and the luxury of having a private swimming pool is such a rarity.

One of our favourite things about the flat is the excellent location. It's only a few minutes walk from a huge range of amenities; cafes, restaurants, gyms, cinemas and supermarkets. We love to go for an early morning walk in Walpole or Pitshanger park before grabbing brunch at one of our local spots. With everything so close by there is a really pleasant community feel to the area, but with multiple transport links available we're only ever a few minutes from central London."

What the agent says:

Nestled in the heart of Ealing, this stunning apartment on the highly desirable Gordon Road is a remarkable find for first-time buyers, savvy investors, and those looking to downsize without compromise. This exquisite ground floor flat, spanning 538 square feet, effortlessly marries modern luxury with captivating period charm.

It benefits from an elegant high-spec finish, showcasing exposed brickwork, sophisticated panelling, and vintage cast iron radiators beneath incredibly high ceilings. Wooden bespoke window shutters offer privacy without sacrificing natural light. The beautiful luxury kitchen, featuring high-end integrated appliances, ensures comfort and convenience.

A generous bedroom offers a calm retreat for rest and rejuvenation and the designer bathroom is a thing of modern beauty.

Heading outdoors, the south-facing communal garden is a tranquil suntrap, perfect for relaxation or entertainment, while the heated swimming pool promises a touch of indulgence.

This property resides on one of Ealing's most sought-after roads, within walking distance to multiple parks such as Walpole, Lammas, Pitshanger and Ealing Common. The proximity to both West Ealing (Elizabeth Line & National Rail) and Ealing Broadway (Central Line, District Line, Elizabeth Line & National Rail) stations offers superb connectivity to Central London and Heathrow. Local amenities abound, with an array of cafes, restaurants, shops, cinemas, gyms, and larger supermarkets including Waitrose, M&S, and Morrisons.

An added bonus, this home is just a stone's throw from the award-winning Pitshanger Village, and it comes chain-free for a smooth transaction. Don't miss the chance to make this unique offering your London sanctuary.

Note that most of our Sellers offer a Reservation Agreement to guarantee their commitment and offer buyers greater security of transaction. Feel free to ask us for further information.

Stamp duty due

Based on a sale price of £450,000 the total amount of stamp duty payable will be:

*

Last updated: The calculator has been updated to reflect changes in stamp duty following the Autumn Budget on 30th October 2024 for April 1st 2025 onwards.

* This value is based on the standard rate and not applicable to first-time buyers or buy-to-let / second home buyers.

16 Property images

1 bed apartment for sale in Gordon Road, Ealing, London, W5 0
1 bed apartment for sale in Gordon Road, Ealing, London, W5 1
1 bed apartment for sale in Gordon Road, Ealing, London, W5 2
1 bed apartment for sale in Gordon Road, Ealing, London, W5 3
1 bed apartment for sale in Gordon Road, Ealing, London, W5 4
1 bed apartment for sale in Gordon Road, Ealing, London, W5 5
1 bed apartment for sale in Gordon Road, Ealing, London, W5 6
1 bed apartment for sale in Gordon Road, Ealing, London, W5 7
1 bed apartment for sale in Gordon Road, Ealing, London, W5 8
1 bed apartment for sale in Gordon Road, Ealing, London, W5 9
1 bed apartment for sale in Gordon Road, Ealing, London, W5 10
1 bed apartment for sale in Gordon Road, Ealing, London, W5 11
1 bed apartment for sale in Gordon Road, Ealing, London, W5 12
1 bed apartment for sale in Gordon Road, Ealing, London, W5 13
1 bed apartment for sale in Gordon Road, Ealing, London, W5 14
1 bed apartment for sale in Gordon Road, Ealing, London, W5 15

Further Details

  • Status: Sold
  • Size: 538 sq ft (49 .98 sq m)
  • Council Tax Band: Band C - £1732
  • Tenure: Leasehold
  • Parking Spaces: Permit
  • Outside Spaces: Communal Garden
  • Reference: 575171

What else you need to know

  • Ground rent period: Year
  • Ground rent price: £350
  • Lease expiry date: 2143-01-01
  • Service charge period: Year
  • Service charge price: £1,287

Location

Similar Priced Properties

2 bed apartment for sale in Clerkenwell House, Hilda Road, Southall, Greater London, UB2
2 bed apartment for sale in Clerkenwell House, Hilda Road, Southall, Greater London, UB2 Guide Price £425,000
2 1 1

What the owners love: Tall ceilings? Check. Period features? Check. Outdoor space? Check. Parking? Check. Next to the country but close to the city? Double check. What’s not to love? This spacious Victorian flat has provided us with the best of...

2 bed apartment for sale in Fordhook Avenue, Ealing, London, W5
Sold
Video Walkthrough Available
2 bed apartment for sale in Fordhook Avenue, Ealing, London, W5 Guide Price £440,000
2 1 1

Enjoy The Best Of Ealing On Your Own Terms. This first floor flat is close to the action when you want to hit the shops, grab something to eat or enjoy plentiful green space. But it's also the perfect place to just kick back & enjoy a quiet night in....

1 bed apartment for sale in Lothair Road, Ealing, London, W5
Sold
Video Walkthrough Available
1 bed apartment for sale in Lothair Road, Ealing, London, W5 Guide Price £450,000
1 1 2

Light & Bright Flat With A Perfect Private Garden To Enjoy A Coffee In The Sun.. You can feel the love and care that’s been poured into this beautifully modernised lower ground floor flat. The lounge has beautifully new front windows and there’s...