Sold
POA

2 bed apartment for sale in Airedale Road, Ealing, London, W5 (ref: 515425)

Shortlist

Key Features

  • Quote PPL when enquiring
  • Cash buyers only
  • Unique & beautiful home
  • Brilliant South Ealing location
  • Two double bedrooms
  • Private Rear Garden & Courtyard
  • Polished concrete floors
  • Original style Boffi Kitchen Island
  • No Onward Chain
  • Quiet residential street
*** CASH BUYERS ONLY ***

Offering a stunning 'Scandinavian style' high-spec finish throughout, this bright and spacious two double bedroom ground floor garden flat has a modern bathroom with a separate WC and an open plan living area with Boffi Italian bespoke kitchen island and doors leading onto the private rear garden.

Close to Walpole Park, Lammas Park, and Ealing Common, Airedale Road is ideally positioned for e many green open spaces of Ealing but also brilliant transport access with both South Ealing and Ealing Broadway tube stations close by.

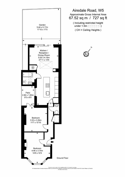
This unique two-bedroom garden flat spans over 725 sq ft and occupies the ground floor of a semi-detached Edwardian building on Airedale Road, a quiet residential street in South Ealing. The apartment has been significantly renovated by the current owners to create a serene, light-filled, contemporary home.

Original floorboards maintain the period charm perfectly blended with 'Scandinavian style' open-plan living. The kitchen/living space has stunning polished concrete floors with underfloor heating further illustrating the distinction between the original fabric and its contemporary additions.

The home's centrepiece is an iconic Boffi K2 'Monobloc' kitchen, with a Norbert Wangen-designed unit that offers a practical, efficient space-saving solution. Appliances are hidden under a sliding stainless-steel work surface and a centrally located skylight with an electric blind bathes the dining area in natural light. The reception area lies to the rear, where large sliding doors open to the simple yet well-sized garden. The concrete floor extends seamlessly to the garden, creating a terrace and connecting the indoor and outdoor spaces.

Two large double bedrooms occupy the front of the property. The main bedroom has a large bay window and an original, functioning fireplace. The second bedroom has original double doors, that open onto a bright courtyard. The bathroom/wetroom is lit from a skylight with simple, white, Italian composite stone bath, contrasting brilliantly with the polished concrete underfoot.

Stamp duty due

Based on a sale price of £500,000 the total amount of stamp duty payable will be:

*

Last updated: The calculator has been updated to reflect changes in stamp duty following the Autumn Budget on 30th October 2024 for April 1st 2025 onwards.

* This value is based on the standard rate and not applicable to first-time buyers or buy-to-let / second home buyers.

16 Property images

2 bed apartment for sale in Airedale Road, Ealing, London, W5 0
2 bed apartment for sale in Airedale Road, Ealing, London, W5 1
2 bed apartment for sale in Airedale Road, Ealing, London, W5 2
2 bed apartment for sale in Airedale Road, Ealing, London, W5 3
2 bed apartment for sale in Airedale Road, Ealing, London, W5 4
2 bed apartment for sale in Airedale Road, Ealing, London, W5 5
2 bed apartment for sale in Airedale Road, Ealing, London, W5 6
2 bed apartment for sale in Airedale Road, Ealing, London, W5 7
2 bed apartment for sale in Airedale Road, Ealing, London, W5 8
2 bed apartment for sale in Airedale Road, Ealing, London, W5 9
2 bed apartment for sale in Airedale Road, Ealing, London, W5 10
2 bed apartment for sale in Airedale Road, Ealing, London, W5 11
2 bed apartment for sale in Airedale Road, Ealing, London, W5 12
2 bed apartment for sale in Airedale Road, Ealing, London, W5 13
2 bed apartment for sale in Airedale Road, Ealing, London, W5 14
2 bed apartment for sale in Airedale Road, Ealing, London, W5 15

Further Details

  • Status: Sold
  • Size: 727 sq ft (67 .54 sq m)
  • Council Tax Band: Band C - £1543
  • Tenure: Leasehold
  • Reference: 515425

What else you need to know

  • Lease expiry date: 2087-10-08
  • Service charge notes: Shared as Needed

Location

Similar Priced Properties

2 bed apartment for sale in Elderberry Road, Ealing, London, W5
Sold
Video Walkthrough Available
2 bed apartment for sale in Elderberry Road, Ealing, London, W5 Guide Price £475,000
2 1 1

What the owners love: "We were originally drawn to the flat by the unusually large west-facing garden, which gets sun almost all day. There is plenty of space for relaxing, eating, growing things and for our children to play. We will really miss...

2 bed apartment for sale in Baronsmede Court, Baronsmede, Ealing, London, W5
Sold STC
Video Walkthrough Available
2 bed apartment for sale in Baronsmede Court, Baronsmede, Ealing, London, W5 Guide Price £495,000
2 1 1

What the Owners Love: "Baronsmede Court has been the perfect first flat in an area we absolutely love. The flat has 2 really good sized bedrooms which is rare to find these days and a spacey kitchen and living room. There is plenty of storage...

3 bed end of terrace house for sale in Carville Crescent, Brentford, London, TW8
Sold
Video Walkthrough Available
3 bed end of terrace house for sale in Carville Crescent, Brentford, London, TW8 Guide Price £500,000
3 1 2

**UNDER OFFER** This Substantial Semi could be the perfect 'Forever Home' project. If you're willing to put the effort in, this could be a great family home. It's well built and couldn't be closer to an "Outstanding" primary school - but it does need...