Let
£2,500 per month

2 bed apartment to rent in Valley House, Manor Road, Ealing, London, W13

Shortlist

Key Features

  • Two double bedrooms
  • Two bathrooms (including en-suite)
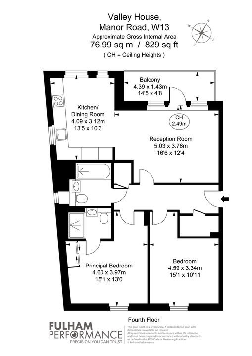
  • 829 sq ft of internal space
  • Top floor with lift access
  • Private balcony overlooking Drayton Green
  • Moments from West Ealing Station (Elizabeth Line)
  • Secure entry system
  • Turn-key condition
Why We’d Rent It ❤️

This pocket of West Ealing is quietly levelling up. From independent coffee spots and boutique gyms to the long-awaited arrival of the Elizabeth Line, it’s a neighbourhood on the rise—and this flat is perfectly placed to benefit from that momentum.

As for the apartment itself? It's a top-floor, lift-serviced, two-bed, two-bath beauty with over 820 sq ft of space and a private balcony that looks out over the green expanse of Drayton Green. Not many in this price range tick that many boxes: secure entry, long lease, modern finish, great proportions, and a commute to Bond Street in under 20 minutes.

Summary

Set on the top floor of a modern, purpose-built development, this well-presented two-bedroom, two-bathroom apartment offers spacious living with over 820 sq ft of internal space. Located moments from West Ealing Station (Elizabeth Line), the property also enjoys a private balcony with views over Drayton Green, lift access, and a secure entry system.

The open-plan kitchen/living space is ideal for entertaining, while both bedrooms are generous doubles, making the flat equally well-suited for small families wanting extra space. The property is offered in excellent condition throughout, providing a turn-key option in one of West Ealing’s most rapidly developing areas.

14 Property images

2 bed apartment to rent in Valley House, Manor Road, Ealing, London, W13 0
2 bed apartment to rent in Valley House, Manor Road, Ealing, London, W13 1
2 bed apartment to rent in Valley House, Manor Road, Ealing, London, W13 2
2 bed apartment to rent in Valley House, Manor Road, Ealing, London, W13 3
2 bed apartment to rent in Valley House, Manor Road, Ealing, London, W13 4
2 bed apartment to rent in Valley House, Manor Road, Ealing, London, W13 5
2 bed apartment to rent in Valley House, Manor Road, Ealing, London, W13 6
2 bed apartment to rent in Valley House, Manor Road, Ealing, London, W13 7
2 bed apartment to rent in Valley House, Manor Road, Ealing, London, W13 8
2 bed apartment to rent in Valley House, Manor Road, Ealing, London, W13 9
2 bed apartment to rent in Valley House, Manor Road, Ealing, London, W13 10
2 bed apartment to rent in Valley House, Manor Road, Ealing, London, W13 11
2 bed apartment to rent in Valley House, Manor Road, Ealing, London, W13 12
2 bed apartment to rent in Valley House, Manor Road, Ealing, London, W13 13

Further Details

  • Status: Let
  • Council Tax Band: Band D - £2041
  • Deposit: £2,885
  • Size: 829 sq ft (77 .02 sq m)
  • Parking Spaces: No Parking Available
  • Outside Spaces: Balcony
  • Reference: 658921

What else you need to know

Leasehold

  • Lease expiry date: 2140-11-01

Utility supply, rights and restrictions

  • Utility supply
    • Electricity supply: Mains supply
    • Heating supply: Gas central
    • Sewerage: Mains supply
    • Water supply: Mains supply
  • Other information
    • Accessibility: Lateral living, lift access
    • Has gas: Yes
    • Property age bracket: Modern

Location

Similar Priced Properties

2 bed apartment to rent in The Grange, The Knoll, Ealing, London, W13
Let
Video Walkthrough Available
2 bed apartment to rent in The Grange, The Knoll, Ealing, London, W13 £2,350 per month
2 1 1

Introducing a superbly presented and fully refurbished apartment, nestled within a stunning nature reserve, in a prime Ealing location. This stunning 4th-floor property is ideally suited for families and professionals seeking a spacious and stylish...

3 bed apartment to rent in Elthorne Avenue, Hanwell, London, W7
Let
3 bed apartment to rent in Elthorne Avenue, Hanwell, London, W7 £2,450 per month
3 2 1

What the owner loves: For my first property, I was looking for a cosy, spacious home in a quiet area and a place with enough room to work, create, cook and host friends. I enjoyed the large open-plan kitchen living room which helped me unwind after a...

2 bed apartment to rent in North Common Road, Ealing, London, W5
Let
2 bed apartment to rent in North Common Road, Ealing, London, W5 £2,500 per month
2 1 1

Welcome to this bright and spacious ground floor apartment, set within an elegant period building on one of Ealing’s most sought-after roads. Offering over 900 sq ft of well-planned living space, this two-bedroom home beautifully combines character...