This website is under development as improvements are being made
Sold
Guide Price £1,350,000

3 bed apartment for sale in Dashwood House, Dickens Yard, London, W5 (ref: 300632)

Shortlist

Key Features

  • 3 bedrooms
  • 3 bathrooms
  • C. 1,500 sq ft
  • 24 hour concierge
  • Large terrace
  • Pool, Spa & gym
  • Secure underground parking for one vehicle
  • Unbeatable location
  • Brilliant buy to let
  • Perfect Pied-à-Terre
  • Lock up & Leave
  • High specification
  • Parking by separate negotiation
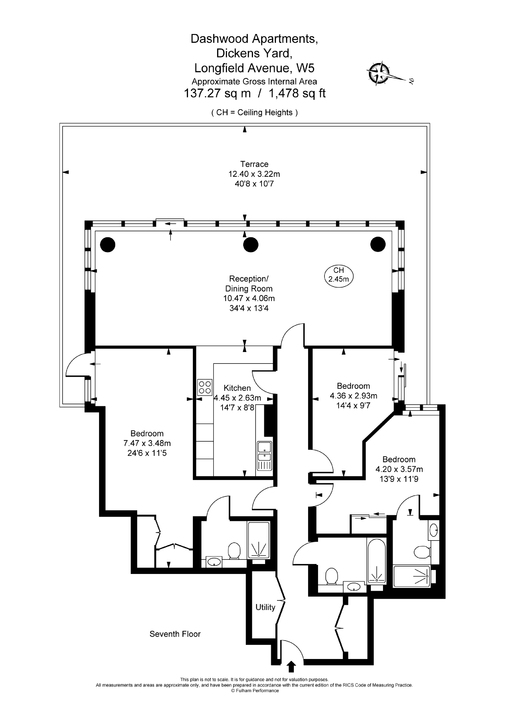
It’s What’s Outside That Counts. This superb 3 bed, 3 bath apartment’s interior is one of the finest in W5. But it’s the bustling Dickens Yard location, unmatched onsite facilities and of course your private 12m terrace that will catch your eye.

If you want to live in the heart of the vibrant new Dickens Yard community then there’s no better address than Dashwood House.

And this 7th floor apartment may be up there with one of the very best.

Whether you’re dining alone or entertaining friends, the spacious 10m open plan lounge and dining room is a fantastic, versatile space.

It’s flooded with light, and has fabulous views, thanks to full height windows on three walls.

You can step out onto your private wraparound terrace from the lounge and two bedrooms, providing stunning views over the rooftops.

It’s the ideal space for relaxing at the end of a long day and will be perfect for summer entertaining.

There’s three double bedrooms all with built-in wardrobes. Two of the bedrooms also have their own luxurious en suite bathrooms which wouldn’t look out of place in a boutique hotel or spa.

The same gorgeous styling has been used in the family bathroom, which has a rainfall style shower over the bath.

Another neat touch is the superb fully-fitted modern kitchen that's open to the lounge thanks to the breakfast bar. This means your friends can sit and chat from the lounge as you rustle them up a treat.

With space so often at a premium in apartments it’s good to know that there’s loads of storage space and a handy utility just off the hallway.

Dashwood House residents have access to a private gym, pool and exclusive spa complete with a swimming pool, jacuzzi, sauna and steam room. Other Dickens Yard blocks also get use of the facilities but having them in your own building makes it so much more convenient.

As you'd expect there's a 24h concierge to ensure your safety and to provide a high level of service to all residents. There’s also secure underground parking and you do get an allocated space.

Dickens Yard has quickly established itself as a real highlight of the local area, with a real urban buzz thanks to the bars, shops, restaurants and leisure facilities.

With so much going on in Dickens Yard you may not feel the need to venture far but it’s good to know you’re only 7 minutes walk from the bustling Ealing Broadway.

That’s great if you want to hit the shops, head to the cinema or enjoy a cheeky Nando’s.

And the new Elizabeth Line cuts the journey time to Canary Wharf to under half an hour.

If you love outdoor space (and need more room than your 12m terrace will allow), you’re perfectly positioned with Walpole Park only 5 minutes walk away.

This superb apartment offers space, style and a vibrant location that’s hard to beat.

Everything about the building and the on-site facilities are high end.

And with your own private terrace to enjoy, you and your friends will love living the Dickens Yard lifestyle.

We’re expecting plenty of interest so don’t miss out - call 020 3448 6445 to arrange a viewing.

Note that most of our Sellers offer a Reservation Agreement to guarantee their commitment and offer buyers greater security of transaction.

Details will be provided before the property is removed from the market following an acceptance of an offer. Ask the agent for further information.

Stamp duty due

Based on a sale price of £1,350,000 the total amount of stamp duty payable will be:

*

Last updated: The calculator has been updated to reflect changes in stamp duty following the Autumn Budget on 30th October 2024 for April 1st 2025 onwards.

* This value is based on the standard rate and not applicable to first-time buyers or buy-to-let / second home buyers.

Further Details

  • Status: Sold
  • Size: 1478 sq ft (137 .31 sq m)
  • Council tax band: G
  • Council Tax Amount: £3068
  • Tenure: Leasehold
  • Reference: 300632

What else you need to know

Leasehold

  • Ground rent period: Year
  • Ground rent price: £600
  • Lease expiry date: 2260-10-29
  • Service charge period: Year
  • Service charge price: £10,800

Utility supply, rights and restrictions

  • Other information
    • Property age bracket: Modern

Location