Sold
Guide Price £500,000

3 bed end of terrace house for sale in Carville Crescent, Brentford, London, TW8 (ref: 500741)

Shortlist

Key Features

  • Chain Free
  • 3 bedrooms
  • End of terrace
  • Substantial corner plot
  • Lovely garden
  • Close to Lionel Primary School
  • Perfect project
  • Blank canvas
**UNDER OFFER**

This Substantial Semi could be the perfect 'Forever Home' project. If you're willing to put the effort in, this could be a great family home. It's well built and couldn't be closer to an "Outstanding" primary school - but it does need some work.

One of the first things you'll notice about this traditional semi is the large plot it sits on. That gives you a great, family-friendly garden with the potential to extend (subject to planning permission, of course).

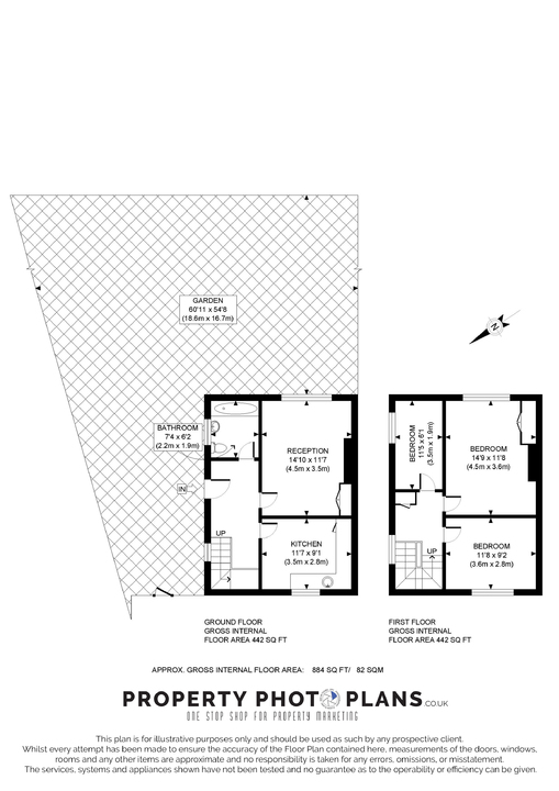
The property has a typical 1930's semi layout, with the lounge, kitchen and bathroom downstairs. There are three bedrooms upstairs.

Even without extending you may want to consider opening up the lounge and kitchen to create a more sociable cooking/dining/eating space.

And if you're thinking about starting a family you may want to move the bathroom upstairs to make bath time & bedtime easier.

Upstairs has two good size double bedrooms and a single bedroom.

The property needs a lick of paint and new flooring throughout and chances are, you'll want to modernise the kitchen and bathroom.

But if you're feeling more ambitious and have the budget to match, the substantial corner plot gives you the potential to extend to the side as well as the rear.

The location couldn't be better if you have young kids or are thinking of starting a family. The Ofsted rated "Outstanding" Lionel Primary School is just behind the property.

The garden is pretty big but if you like your green space for running, cycling or walking the dog, Gunnersbury Park is only a couple of streets away.

If you need to head into Central London, Kew Bridge station is less than 15 minutes walk away. Frequent overland trains will get you to Waterloo in just over half an hour.
Not that you have to hit central London for your everyday needs. The property is in a really handy position roughly the same distance from Brentford, Ealing and Chiswick.

If you're heading out of town or away for the weekend, it's only a 5-minute drive to the M4. Heathrow is less than a quarter of an hour away.

If you're looking for a house that's ready to move into, this won't be for you. But it will be for you if you can see the fantastic potential on offer.

Are you getting excited about the chance to start from scratch and create a family home that perfectly meets your needs?

We're expecting plenty of interest from couples and young families with the vision to do so - don't miss out - call 020 3488 6445 to arrange a viewing.

Stamp duty due

Based on a sale price of £500,000 the total amount of stamp duty payable will be:

*

Last updated: The calculator has been updated to reflect changes in stamp duty following the Autumn Budget on 30th October 2024 for April 1st 2025 onwards.

* This value is based on the standard rate and not applicable to first-time buyers or buy-to-let / second home buyers.

13 Property images

3 bed end of terrace house for sale in Carville Crescent, Brentford, London, TW8 0
3 bed end of terrace house for sale in Carville Crescent, Brentford, London, TW8 1
3 bed end of terrace house for sale in Carville Crescent, Brentford, London, TW8 2
3 bed end of terrace house for sale in Carville Crescent, Brentford, London, TW8 3
3 bed end of terrace house for sale in Carville Crescent, Brentford, London, TW8 4
3 bed end of terrace house for sale in Carville Crescent, Brentford, London, TW8 5
3 bed end of terrace house for sale in Carville Crescent, Brentford, London, TW8 6
3 bed end of terrace house for sale in Carville Crescent, Brentford, London, TW8 7
3 bed end of terrace house for sale in Carville Crescent, Brentford, London, TW8 8
3 bed end of terrace house for sale in Carville Crescent, Brentford, London, TW8 9
3 bed end of terrace house for sale in Carville Crescent, Brentford, London, TW8 10
3 bed end of terrace house for sale in Carville Crescent, Brentford, London, TW8 11
3 bed end of terrace house for sale in Carville Crescent, Brentford, London, TW8 12

Further Details

  • Status: Sold
  • Size: 884 sq ft (82 .13 sq m)
  • Tenure: Freehold
  • Reference: 500741

What else you need to know

  • Property age bracket: 1920 to 1930

Location

Similar Priced Properties

2 bed apartment for sale in Elderberry Road, Ealing, London, W5
Sold
Video Walkthrough Available
2 bed apartment for sale in Elderberry Road, Ealing, London, W5 Guide Price £475,000
2 1 1

What the owners love: "We were originally drawn to the flat by the unusually large west-facing garden, which gets sun almost all day. There is plenty of space for relaxing, eating, growing things and for our children to play. We will really miss...

2 bed apartment for sale in Baronsmede Court, Baronsmede, Ealing, London, W5
Sold STC
Video Walkthrough Available
2 bed apartment for sale in Baronsmede Court, Baronsmede, Ealing, London, W5 Guide Price £495,000
2 1 1

What the Owners Love: "Baronsmede Court has been the perfect first flat in an area we absolutely love. The flat has 2 really good sized bedrooms which is rare to find these days and a spacey kitchen and living room. There is plenty of storage...

2 bed apartment for sale in Castlebar Park, Ealing, London, W5
Sold
Video Walkthrough Available
2 bed apartment for sale in Castlebar Park, Ealing, London, W5 Guide Price £500,000
2 2 1

Attention buy to let investors and first-time buyers! A beautiful and spacious two-bedroom, two-bathroom apartment situated just a short stroll from Pitshanger Lane with its own allocated parking space and beautifully landscaped communal gardens in...