Sold
Guide Price £775,000

3 bed terraced house for sale in Cecil Road, Acton, London, W3 (ref: 599586)

Shortlist

Key Features

  • Lovely Freehold Family Home
  • Immaculate Condition with Opportunity to Modernise
  • Extension Potential (STPP)
  • Beautiful Private Front & Rear Gardens
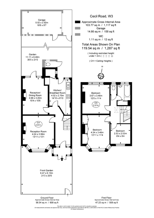
  • Over 1100 Sq Ft
  • Excellent Transport Links
  • Close to Wonderful Parks
  • Fantastic Range of Schools Nearby
  • Buyer information pack available on request
Nestled in the heart of Acton, we are pleased to present a rare opportunity to acquire a delightful freehold family home. This charming house offers a perfect blend of character and potential, spread across a generous 1100+ square feet of living space.

The property is presented in immaculate condition, allowing the new owners to move in without the immediate need for renovation, whilst still offering ample scope to modernise and add their personal touch. Additionally, there is potential to extend (subject to planning permission), adding both space and value to this already attractive home.

Set back from the road, the house boasts beautiful private gardens to the front and rear, providing a tranquil oasis in the city. The rear garden also features a sizeable outbuilding, ideal for storage or conversion into a home office or workshop.

Inside, two spacious reception rooms create a warm and inviting family area, complemented by an eat-in kitchen. The property is particularly well-suited for downsizers seeking a more manageable space without compromising on comfort, first-time buyers eager to step onto the property ladder in a sought-after location, and young families who will appreciate the fantastic range of schools and parks nearby.

Located in a coveted area of London, this house benefits from excellent transport links, ensuring central London is easily accessible. Residents can also take advantage of the close proximity to the wonderful playing fields on the doorstep and a variety of local amenities.

Homes in this location are seldom available, making this an unmissable chance to own a piece of Acton's charm. Discover the potential of Cecil Road and envision creating your perfect home in this vibrant London community.

Note that most of our Sellers offer a Reservation Agreement to guarantee their commitment and offer Buyers greater security of transaction. Feel free to ask us for further information.

Download Brochure

Stamp duty due

Based on a sale price of £775,000 the total amount of stamp duty payable will be:

*

Last updated: The calculator has been updated to reflect changes in stamp duty following the Autumn Budget on 30th October 2024 for April 1st 2025 onwards.

* This value is based on the standard rate and not applicable to first-time buyers or buy-to-let / second home buyers.

14 Property images

3 bed terraced house for sale in Cecil Road, Acton, London, W3 0
3 bed terraced house for sale in Cecil Road, Acton, London, W3 1
3 bed terraced house for sale in Cecil Road, Acton, London, W3 2
3 bed terraced house for sale in Cecil Road, Acton, London, W3 3
3 bed terraced house for sale in Cecil Road, Acton, London, W3 4
3 bed terraced house for sale in Cecil Road, Acton, London, W3 5
3 bed terraced house for sale in Cecil Road, Acton, London, W3 6
3 bed terraced house for sale in Cecil Road, Acton, London, W3 7
3 bed terraced house for sale in Cecil Road, Acton, London, W3 8
3 bed terraced house for sale in Cecil Road, Acton, London, W3 9
3 bed terraced house for sale in Cecil Road, Acton, London, W3 10
3 bed terraced house for sale in Cecil Road, Acton, London, W3 11
3 bed terraced house for sale in Cecil Road, Acton, London, W3 12
3 bed terraced house for sale in Cecil Road, Acton, London, W3 13

Further Details

  • Status: Sold
  • Size: 1117 sq ft (103 .77 sq m)
  • Council Tax Band: Band E - £2381
  • Tenure: Freehold
  • Parking Spaces: Residents
  • Outside Spaces: Back Garden, Enclosed Garden, Front Garden, Private Garden
  • Reference: 599586

What else you need to know

  • Property age bracket: 1950 to 1970

Location

Similar Priced Properties

3 bed semi-detached house for sale in Coldershaw Road, Ealing, London, W13
Sold
Video Walkthrough Available
3 bed semi-detached house for sale in Coldershaw Road, Ealing, London, W13 Guide Price £750,000
3 1 2

Who says becoming a homeowner means you’ve got to settle down? This versatile end terrace could be the perfect first step onto the housing ladder. It’s just been refurbished to a really great standard and is so close to the Broadway shops, bars...

3 bed terraced house for sale in Mervyn Road, Ealing, London, W13
Sold
Video Walkthrough Available
3 bed terraced house for sale in Mervyn Road, Ealing, London, W13 Guide Price £750,000
3 1 1

Introducing a truly delightful and charming three-bedroom, end terrace house located on Mervyn Road, a lovely tree-lined street in the heart of Northfields. This superbly presented and chain-free family home boasts spacious accommodation over two...

3 bed apartment for sale in Castlebar Park, Ealing, London, W5
Sold
Video Walkthrough Available
3 bed apartment for sale in Castlebar Park, Ealing, London, W5 Guide Price £795,000
3 2 1

What the owners love: "When we found this flat we fell in love straight away. It was so new, modern, bright and airy, had a huge garden, its own driveway, no shared front door and even had an outbuilding for whatever we wanted to use it for! It feels...