Sold
Guide Price £750,000

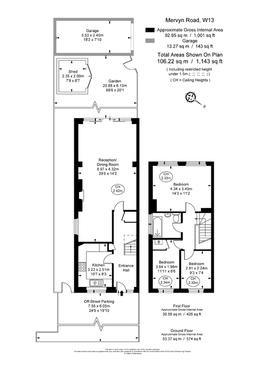
3 bed terraced house for sale in Mervyn Road, Ealing, London, W13 (ref: 561132)

Shortlist

Key Features

  • Beautiful Tree-Lined Street
  • Spacious End Terrace
  • Off Street Parking
  • Private Garage
  • Close to Fielding Primary School
  • Arranged Over Two Floors
  • Generous South-West Facing Garden
  • Backing Onto Playing Fields
  • Excellent Condition Throughout
  • No Onward Chain
  • Certain photographs employ virtual staging methods.
Introducing a truly delightful and charming three-bedroom, end terrace house located on Mervyn Road, a lovely tree-lined street in the heart of Northfields. This superbly presented and chain-free family home boasts spacious accommodation over two floors, making it an excellent choice for growing families, savvy investors and downsizers seeking a peaceful and idyllic setting.

Upon entering this turn-key ready residence, you will be instantly impressed by the generous living spaces and the warm, welcoming atmosphere. The bright and airy lounge provides a comfortable haven for relaxation, while the dining area caters for all your entertaining needs.

The stylish and contemporary kitchen comes complete with modern appliances and ample storage, seamlessly flowing into the dining area. Additionally, there is a sleek family bathroom to cater to your everyday needs.

Upstairs, the three well-proportioned bedrooms offer a haven of tranquillity and plenty of space for family living. One of the standout features of this wonderful property is the South West facing garden, providing the perfect setting for al fresco dining and summer BBQs. Backing onto playing fields, the generous garden offers an abundance of green space, ensuring the utmost in privacy and seclusion.

Located just a stone's throw from the highly regarded Fielding Primary School and within close proximity to an array of local amenities, this fantastic property truly offers the best of both worlds. With off-street parking and a garage included, you'll never need to worry about finding a parking space again.

Don't miss this exceptional opportunity to secure a stunning home in a sought-after area of Ealing, London. Contact us today to arrange a viewing.

Note that most of our Sellers offer a Reservation Agreement to guarantee their commitment and offer buyers greater security of transaction.

Details will be provided before the property is removed from the market following an acceptance of an offer. Ask the agent for further information.

We wish to inform prospective buyers that certain photographs presented in our listings employ virtual staging methods.

Stamp duty due

Based on a sale price of £750,000 the total amount of stamp duty payable will be:

*

Last updated: The calculator has been updated to reflect changes in stamp duty following the Autumn Budget on 30th October 2024 for April 1st 2025 onwards.

* This value is based on the standard rate and not applicable to first-time buyers or buy-to-let / second home buyers.

15 Property images

3 bed terraced house for sale in Mervyn Road, Ealing, London, W13 0
3 bed terraced house for sale in Mervyn Road, Ealing, London, W13 1
3 bed terraced house for sale in Mervyn Road, Ealing, London, W13 2
3 bed terraced house for sale in Mervyn Road, Ealing, London, W13 3
3 bed terraced house for sale in Mervyn Road, Ealing, London, W13 4
3 bed terraced house for sale in Mervyn Road, Ealing, London, W13 5
3 bed terraced house for sale in Mervyn Road, Ealing, London, W13 6
3 bed terraced house for sale in Mervyn Road, Ealing, London, W13 7
3 bed terraced house for sale in Mervyn Road, Ealing, London, W13 8
3 bed terraced house for sale in Mervyn Road, Ealing, London, W13 9
3 bed terraced house for sale in Mervyn Road, Ealing, London, W13 10
3 bed terraced house for sale in Mervyn Road, Ealing, London, W13 11
3 bed terraced house for sale in Mervyn Road, Ealing, London, W13 12
3 bed terraced house for sale in Mervyn Road, Ealing, London, W13 13
3 bed terraced house for sale in Mervyn Road, Ealing, London, W13 14

Further Details

  • Status: Sold
  • Size: 1143 sq ft (106 .19 sq m)
  • Council Tax Band: Band E - £2250
  • Tenure: Freehold
  • Reference: 561132

What else you need to know

  • Property age bracket: 1950 to 1970

Location

Similar Priced Properties

3 bed terraced house for sale in Avalon Road, Ealing, London, W13
3 bed terraced house for sale in Avalon Road, Ealing, London, W13 Guide Price £700,000
3 1 1

❤️ What the Owner Loves We’ve loved this home for years. It’s warm, practical, and in such a brilliant spot. The off-street parking has been a godsend (especially on busy school mornings), and the built-in wardrobes mean there’s a place for...

2 bed end of terrace house for sale in Orchard Road, Brentford, TW8
Sold
2 bed end of terrace house for sale in Orchard Road, Brentford, TW8 Guide Price £725,000
2 1 1

What the owner loves: It has been a joy to start our family on Orchard Road, we have made so many happy memories. Since we completed the extension, we have loved spending sunny days with the doors open cooking in the kitchen, playing in the garden,...

3 bed semi-detached house for sale in Coldershaw Road, Ealing, London, W13
Sold
Video Walkthrough Available
3 bed semi-detached house for sale in Coldershaw Road, Ealing, London, W13 Guide Price £750,000
3 1 2

Who says becoming a homeowner means you’ve got to settle down? This versatile end terrace could be the perfect first step onto the housing ladder. It’s just been refurbished to a really great standard and is so close to the Broadway shops, bars...