Sold
Guide Price £1,250,000

3 bed terraced house for sale in Wilton Avenue, Chiswick, London, W4 (ref: 598146)

Shortlist

Key Features

  • Beautiful Family Home
  • Potential To Extend (STPP)
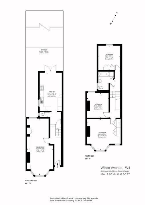
  • Three Generous Bedrooms
  • Lovely Period Features
  • Sunny Private Garden
  • Excellent Schools Nearby
  • Tree-Lined Cul-de-Sac
  • Exceptional Location
  • Buyer information pack available on request
What the owner loves ❤️:

My family home for over 40 years. My three girls were bought up here our door was always open. Grandchildren love coming to their mother’s home, being a dead end road the kids played. A real community feel. Such a lovely road to live on. Neighbours have been fantastic. I will be sorry to say goodbye to Wilton Avenue. But being in my elder years I need to downsize. I hope this home brings as much joy to you as it has to my family.

What the agent says:

Nestled on a tranquil, leafy street in a highly sought-after pocket of Chiswick, this charming period family home on Wilton Avenue offers a delightful blend of classic elegance and modern comfort, perfect for first-time buyers and up-sizers alike.

Upon entering this enchanting house, you'll be captivated by its high ceilings and original features, which have been lovingly preserved to create a warm and inviting atmosphere.

The heart of this home is undoubtedly the beautiful through-reception, boasting classic character and contemporaneity - perfect for family gatherings and cosy nights in.

The newly refurbished kitchen, with modern fixtures and finishes, provides a stylish yet functional space to cook and entertain guests.

Three generous bedrooms promise ample space for a growing family or a home office setup, catering to the new work-from-home culture.

As you envision your life here, consider the potential to extend (subject to planning permission). Whether it's an exceptional principle suite, a larger living area, or a sun-soaked conservatory, this home offers the canvas for you to create your dream space.

Families will be delighted with the selection of excellent schools nearby, cementing this property's status as an ideal choice for those prioritising education. Moreover, residing on a quiet cul-de-sac means you can enjoy peace and quiet while still being moments away from the vibrant heart of Chiswick, with its famous array of boutiques, cafes, restaurants and bars.

Don't miss this opportunity to secure a slice of Chiswick's charm; Wilton Avenue is waiting to welcome you home.

Note that most of our Sellers offer a Reservation Agreement to guarantee their commitment and offer Buyers greater security of transaction. Feel free to ask us for further information.

Download Brochure

Stamp duty due

Based on a sale price of £1,250,000 the total amount of stamp duty payable will be:

*

Last updated: The calculator has been updated to reflect changes in stamp duty following the Autumn Budget on 30th October 2024 for April 1st 2025 onwards.

* This value is based on the standard rate and not applicable to first-time buyers or buy-to-let / second home buyers.

19 Property images

3 bed terraced house for sale in Wilton Avenue, Chiswick, London, W4 0
3 bed terraced house for sale in Wilton Avenue, Chiswick, London, W4 1
3 bed terraced house for sale in Wilton Avenue, Chiswick, London, W4 2
3 bed terraced house for sale in Wilton Avenue, Chiswick, London, W4 3
3 bed terraced house for sale in Wilton Avenue, Chiswick, London, W4 4
3 bed terraced house for sale in Wilton Avenue, Chiswick, London, W4 5
3 bed terraced house for sale in Wilton Avenue, Chiswick, London, W4 6
3 bed terraced house for sale in Wilton Avenue, Chiswick, London, W4 7
3 bed terraced house for sale in Wilton Avenue, Chiswick, London, W4 8
3 bed terraced house for sale in Wilton Avenue, Chiswick, London, W4 9
3 bed terraced house for sale in Wilton Avenue, Chiswick, London, W4 10
3 bed terraced house for sale in Wilton Avenue, Chiswick, London, W4 11
3 bed terraced house for sale in Wilton Avenue, Chiswick, London, W4 12
3 bed terraced house for sale in Wilton Avenue, Chiswick, London, W4 13
3 bed terraced house for sale in Wilton Avenue, Chiswick, London, W4 14
3 bed terraced house for sale in Wilton Avenue, Chiswick, London, W4 15
3 bed terraced house for sale in Wilton Avenue, Chiswick, London, W4 16
3 bed terraced house for sale in Wilton Avenue, Chiswick, London, W4 17
3 bed terraced house for sale in Wilton Avenue, Chiswick, London, W4 18

Further Details

  • Status: Sold
  • Size: 1293 sq ft (120 .12 sq m)
  • Council Tax Band: Band G - £3247
  • Tenure: Freehold
  • Parking Spaces: On Street, Permit, Residents
  • Outside Spaces: Back Garden, Private Garden, Rear Garden
  • Reference: 598146

What else you need to know

  • Property age bracket: Victorian

Location

Similar Priced Properties

4 bed terraced house for sale in Mayfield Avenue, Ealing, London, W13
Sold STC
4 bed terraced house for sale in Mayfield Avenue, Ealing, London, W13 Guide Price £1,100,000
4 2 1

❤️ What the owner loves: After many wonderful years in our home on Mayfield Avenue, it’s time for us to move on – but not without sharing what makes this place so special. From the moment we stepped through the door, we knew this house was...

5 bed terraced house for sale in Highview Road, Ealing, London, W13
Sold
Video Walkthrough Available
5 bed terraced house for sale in Highview Road, Ealing, London, W13 Guide Price £1,200,000
5 2 1

Introducing this truly stunning five-bedroom family house on the highly desirable Highview Road, a wide tree-lined street in an exceptional pocket of Ealing. This immaculate property, previously owner-occupied, has been meticulously refurbished to...

4 bed semi-detached house for sale in Ravensbourne Gardens, Ealing, London, W13
Sold
4 bed semi-detached house for sale in Ravensbourne Gardens, Ealing, London, W13 Guide Price £1,250,000
4 1 2

Wanted - Enthusiastic Buyers With Vision Looking To Create A Truly Stunning Family Home. This substantial Edwardian semi is the ideal blank canvas to create your perfect forever home that combines the best of old and new. All three floors of this...