Let
£2,950 per month

3 bed terraced house to rent in Burnham Way, Ealing, Northfields, London, W13

Shortlist

Key Features

  • Three Bedrooms
  • Modern Bathroom
  • Recently Refurbished
  • Low Maintenace Garden
  • Downstairs WC
  • Flexible Layout
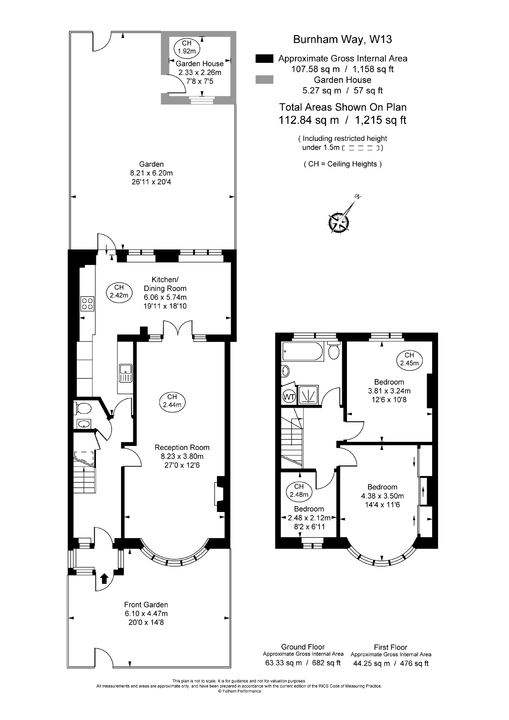
  • Over 1,200 sq ft
  • Close to Fielding Primary School
  • Popular Residential Street
  • Well located for Northfields Avenue
  • Equidistant to Boston Manor & Northfields Tube
  • Unfurnished
  • Permit Parking
  • Please note that the images provided may include virtual staging
Step into the harmonious blend of comfort and convenience with this recently refurbished three-bedroom terraced house on the much sought-after Burnham Way in Ealing, Northfields, London, W13. Available to rent immediately, this property is a delightful haven for young professional families and downsizers alike.

Spread over 1,200 sq ft, the home presents a flexible layout designed to accommodate the ebb and flow of family life or the tranquil pace of those looking to downsize without compromise. The modern bathroom and additional downstairs WC cater to the practical needs of a bustling household, while the low-maintenance garden offers a serene outdoor retreat for relaxation and entertainment.

Each of the three bedrooms is a sanctuary of peace, with ample space for rest and rejuvenation. The heart of the home is its recently updated kitchen, which seamlessly flows into the living spaces, ensuring that family time is spent in true comfort and style.

Residents will appreciate the property's proximity to the outstanding Fielding Primary School, making the morning school run a breeze. Situated on a popular residential street, the home is well-located for the shops and cafés on Northfields Avenue, including No.6 Coffee, where one can indulge in exceptional coffee and scrumptious sandwiches. Furthermore, the convenience of being equidistant to both Boston Manor and Northfields Tube stations provides effortless access to the wider city.

This unfurnished gem offers permit parking, ensuring your vehicle is accommodated as thoughtfully as each member of your household. Embrace the opportunity to reside in a vibrant community, where every amenity is within easy reach, all the while enjoying the tranquillity of your stylish London abode.

Please note that the images provided may include virtual staging, which has been digitally enhanced to showcase the potential use of the space. The furnishings, decor, and layout depicted are for illustrative purposes only and do not represent the actual contents or configuration of the property.

Potential applicants should be aware that the property is taken as seen and any furniture, accessories, or decor shown in the virtual staging images will not be included. We encourage prospective applicants to arrange an in-person viewing to fully appreciate the property as it is.

Download Brochure

20 Property images

3 bed terraced house to rent in Burnham Way, Ealing, Northfields, London, W13 0
3 bed terraced house to rent in Burnham Way, Ealing, Northfields, London, W13 1
3 bed terraced house to rent in Burnham Way, Ealing, Northfields, London, W13 2
3 bed terraced house to rent in Burnham Way, Ealing, Northfields, London, W13 3
3 bed terraced house to rent in Burnham Way, Ealing, Northfields, London, W13 4
3 bed terraced house to rent in Burnham Way, Ealing, Northfields, London, W13 5
3 bed terraced house to rent in Burnham Way, Ealing, Northfields, London, W13 6
3 bed terraced house to rent in Burnham Way, Ealing, Northfields, London, W13 7
3 bed terraced house to rent in Burnham Way, Ealing, Northfields, London, W13 8
3 bed terraced house to rent in Burnham Way, Ealing, Northfields, London, W13 9
3 bed terraced house to rent in Burnham Way, Ealing, Northfields, London, W13 10
3 bed terraced house to rent in Burnham Way, Ealing, Northfields, London, W13 11
3 bed terraced house to rent in Burnham Way, Ealing, Northfields, London, W13 12
3 bed terraced house to rent in Burnham Way, Ealing, Northfields, London, W13 13
3 bed terraced house to rent in Burnham Way, Ealing, Northfields, London, W13 14
3 bed terraced house to rent in Burnham Way, Ealing, Northfields, London, W13 15
3 bed terraced house to rent in Burnham Way, Ealing, Northfields, London, W13 16
3 bed terraced house to rent in Burnham Way, Ealing, Northfields, London, W13 17
3 bed terraced house to rent in Burnham Way, Ealing, Northfields, London, W13 18
3 bed terraced house to rent in Burnham Way, Ealing, Northfields, London, W13 19

Further Details

  • Status: Let
  • Council Tax Band: Band E - £2381
  • Deposit: £3,404
  • Size: 1215 sq ft (112 .88 sq m)
  • Parking Spaces: On Street, Permit, Residents
  • Outside Spaces: Back Garden, Private Garden, Rear Garden
  • Reference: 603097

What else you need to know

  • Has gas: Yes
  • Property age bracket: 1920 to 1930

Location

Similar Priced Properties

3 bed semi-detached house to rent in Harp Road, Hanwell, London, W7
Let
Video Walkthrough Available
3 bed semi-detached house to rent in Harp Road, Hanwell, London, W7 £2,750 per month
3 1 2

Welcome to Harp Road, a gorgeous semi-detached family home that is sure to capture the attention of a wide range of property tenants. With its newly renovated two-story layout, beautiful garden, and quiet yet convenient location, there is so much to...

3 bed apartment to rent in North Common Road, Ealing, London, W5
Let
Video Walkthrough Available
3 bed apartment to rent in North Common Road, Ealing, London, W5 £2,750 per month
3 1 1

Discover this hidden gem on North Common Road, a top-floor apartment in the coveted area of Ealing Common, London. Tucked away from the hustle, this property is a perfect family retreat with easy access to the main thoroughfares. This flat features a...

2 bed apartment to rent in Alfred Road, Acton, London, W3
Let
Video Walkthrough Available
2 bed apartment to rent in Alfred Road, Acton, London, W3 £2,950 per month
2 2 1

Two-bedroom flat offering the best in contemporary Acton living Unlock a world of refined living in this meticulously designed contemporary-style flat, where exceptional architectural brilliance harmonises effortlessly with the art of extraordinary...