This website is under development as improvements are being made
£2,500 per month

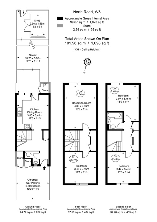
3 bed terraced house to rent in North Road, Ealing, London, W5 (ref: 890541)

Shortlist

Key Features

  • EPC Rating: C
  • Available now
  • 3 Bedrooms
  • 1 Bathroom
  • Additional WC
  • Off-street parking
  • 1980's build
  • Over 1,000 sq ft
  • Superb South Ealing Location
  • Close to transport - South Ealing / Brentford / Bus Links
  • Next to Gunnersbury Park
  • Private Garden
  • Loads of storage
  • Landlord is flexible with regard to furnishings
Introducing a charming 3-bedroom townhouse terrace home located in North Road, Ealing, London, W5, perfect for families seeking the ideal balance of comfortable living and convenient location. Boasting over 1,000 sq ft of living space and an impressive EPC Rating of C, this 1980's built property is available now and ready to welcome you home.

On the ground floor, there's a spacious hallway and downstairs WC, a separate modern kitchen / diner which features plenty of storage and integrated appliances, making meal preparation a breeze. The room opens up to a lovely private garden, perfect for relaxation or entertaining.

The upstairs offers an additional first floor reception room, three well-proportioned bedrooms and a family bathroom, this property also offers the added convenience of off-street parking for one vehicle. Storage will never be an issue, as this home provides ample storage throughout.

Situated in a superb South Ealing location, this property is set in a quiet cul-de-sac just off South Ealing Road, providing an idyllic retreat from the hustle and bustle of city life. The home is within walking distance to an array of shops and cafés, as well as a Sainsbury's Local for everyday essentials. The bustling Ealing Broadway is also easily accessible, offering a wider selection of well-known retailers and restaurants.

Transport links are plentiful, with South Ealing and Brentford stations, as well as various bus links, providing seamless connections to both Heathrow and Central London. Next to Gunnersbury Park, this residence offers ample opportunities for leisurely walks and family outings.

Don't miss this unique opportunity to make North Road your family's new home – contact us today to arrange a viewing.

Download Brochure

Rent affordability

Based on a monthly rental price of £2,500 you'd need an income of * per month or * per annum.

If a guarantor is required, they'll need an income of * per annum.

Further Details

  • Tenant information
  • Status: Available
  • Council Tax Band: E
  • Council Tax Amount: £2614
  • Availability: Now
  • Deposit: £2,885
  • Size: 1098 sq ft (102 .01 sq m)
  • Parking Spaces: Driveway, Off Street, On Street, Permit, Residents
  • Outside Spaces: Back Garden, Yard, Patio, Rear Garden
  • Reference: 890541

What else you need to know

Utility supply, rights and restrictions

  • Utility supply
    • Electricity supply: Mains supply
    • Heating supply: Gas central
    • Sewerage: Mains supply
    • Water supply: Mains supply
  • Other information
    • Accessibility: Not suitable for wheelchair users
    • Has gas: Yes
    • Property age bracket: 1950 to 1970

Location