Sold
Guide Price £1,100,000

4 bed terraced house for sale in Mayfield Avenue, Ealing, Northfields, London, W13 (ref: 531181)

Shortlist

Key Features

  • 4 Bedrooms
  • 2 Bathrooms
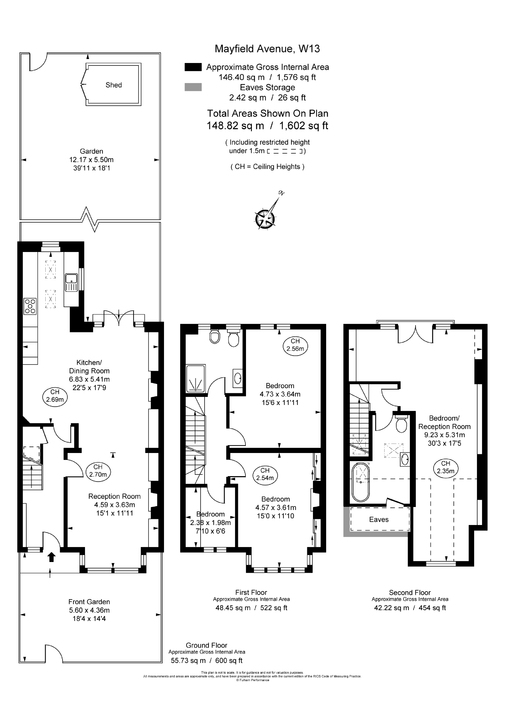
  • c. 1,600 sq ft
  • Immaculate finish and condition throughout
  • Beautifully landscaped garden
  • Period charm blended with contemporary finishes
  • Fabulous fireplaces in both reception rooms and bedroom
  • Loft conversion with juliette balcony
  • Built-in storage
  • Generously proportioned rooms
  • Skillfully designed period bathrooms
  • Underfloor heating in bathrooms
  • Neutral tasteful colour scheme
  • Double reception room
  • 0.3 miles to Northfields Underground Station
  • Blondin & Lammas Park in easy walking distance
  • Superb location

Video

Video

View video
What the owner loves ❤️

“The house feels light and open, the space is really flexible too. I use the top floor as an office, a place to relax and do yoga, watch the sun go down, put up friends to stay - but it would work so well as a playroom or bedroom too. I had the garden completely made over two years ago and it’s transformed our outside living; the back of the house stays shady and cool, while the rest of the garden is the perfect sunny space for sitting and entertaining our friends. Northfields is a great location – in 10 minutes I can walk to the tube (always stopping off for Ealing’s best coffee at Element!); I can be in one of three fabulous parks in 10 minutes too – I didn’t have a clue that whenever I drove along the M4 elevated section there were fabulous wild spaces, a canal, parks and beautiful walks just below me! I chose Ealing for the Elizabeth Line (before it was open), it’s a super easy location for Heathrow and the West, and to be in the “West End” or the City in under an hour is a dream. Ealing Broadway has everything you need and in the five years I’ve lived here, I’ve seen it continue to transform into a lively hub with everything you need – it’s just a 20-minute walk, or on the E2 even quicker. I will be sad to leave the area, I’ve made so many friends, but it’s time to move to Wiltshire with my dog. I know that anyone who moves to 102 will love it here as much as I have.”

What the Agent says:

Every once in a while you get the opportunity to work on a house, and with a customer, where you feel truly privileged. This is one of those occasions.

You’ll fall in love with this wonderfully welcoming home that tastefully blends old and new. Sometimes less really is more. This superb Edwardian terrace has been sensitively updated to create a stylish, spacious and versatile 21st-century home.

There’s little point in buying a period property and then ripping it all apart and modernising it from top to bottom. You may as well just buy a new build.

The very best updated period properties bring out the best of their traditional character and combine this with tasteful modern design where it can make the most impact.

And this has to be one of the very best updated period properties we’ve seen.

The traditional two reception room layout has been opened up to create one superb sociable space where the whole family will enjoy getting together.

The clean and unfussy decor highlights the gorgeous original fireplaces which draw your eyes in both rooms.

By contrast, the kitchen is sleek and modern, with light flooding in through the Velux window and the stunning full-height window at the end of the rear extension.

Stylish floor tiles cover the whole of the ground floor, flowing perfectly from the front door, through the property, through to the kitchen and onto the french doors with direct access to the garden.

The beautifully landscaped low-maintenance back garden is a lovely spot to sit out and enjoy the late afternoon and evening sun.

Upstairs has two double bedrooms, a single bedroom and a luxurious bathroom on the first floor. The bay-fronted bedroom is worthy of special mention, with another original fireplace and fitted wardrobes on either side of the chimney breast adding to the period charm.

The top-floor loft conversion is a versatile space that would be the ideal master bedroom thanks to the stylish ensuite bathroom and juliet balcony.

But it could also be an inspirational home office or studio, or even a self-contained guest bedroom.

As this is a family-friendly property, the fantastic local schools will be another great reason to move here.

Fielding Primary School (rated ‘Outstanding’ by Ofsted) is literally on the next street. You can say goodbye to school-run stress and hello to a longer lie-in!

For older kids, Elthorne Park High School (also rated ‘Outstanding’ by Ofsted) is only a 10 minute walk or a 5 minute bike ride away.

The location is also hard to beat if you’re a foodie with a taste for independent shops, cafés and restaurants. Nearby Northfield Avenue has everything your taste buds could desire, including a Tesco Express for the mundane day-to-day essentials.

And if you’re looking for big-name retailers or a cheeky Nando’s, Ealing Broadway is only a 30 minute walk away through Lammas and Walpole parks.

If you’re heading further afield the new Elizabeth Line from Ealing Broadway cuts the journey time to Canary Wharf to under half an hour. With Northfields station on the Piccadilly Line being only 10 minutes walk away, you’ve always got a Plan B.

If you’re heading even further afield it’s only a 5 minute drive to the M4, with Heathrow and the M25 only a short distance away.

This has to be one of the most gorgeous period properties we’ve had the pleasure of bringing to market. It’s in an immaculate condition, in a fantastic location.

If you’re looking for a stylish and spacious family home with great schools, shops and parks nearby then you won’t find anything better than this.

We’re expecting plenty of interest - make sure you don’t miss out by calling 020 3488 6445 to book a viewing.

Note that most of our Sellers offer a Reservation Agreement to guarantee their commitment and offer buyers greater security of transaction.

Details will be provided before the property is removed from the market following an acceptance of an offer. Ask the agent for further information.

Stamp duty due

Based on a sale price of £1,100,000 the total amount of stamp duty payable will be:

*

Last updated: The calculator has been updated to reflect changes in stamp duty following the Autumn Budget on 30th October 2024 for April 1st 2025 onwards.

* This value is based on the standard rate and not applicable to first-time buyers or buy-to-let / second home buyers.

20 Property images

4 bed terraced house for sale in Mayfield Avenue, Ealing, Northfields, London, W13 0
4 bed terraced house for sale in Mayfield Avenue, Ealing, Northfields, London, W13 1
4 bed terraced house for sale in Mayfield Avenue, Ealing, Northfields, London, W13 2
4 bed terraced house for sale in Mayfield Avenue, Ealing, Northfields, London, W13 3
4 bed terraced house for sale in Mayfield Avenue, Ealing, Northfields, London, W13 4
4 bed terraced house for sale in Mayfield Avenue, Ealing, Northfields, London, W13 5
4 bed terraced house for sale in Mayfield Avenue, Ealing, Northfields, London, W13 6
4 bed terraced house for sale in Mayfield Avenue, Ealing, Northfields, London, W13 7
4 bed terraced house for sale in Mayfield Avenue, Ealing, Northfields, London, W13 8
4 bed terraced house for sale in Mayfield Avenue, Ealing, Northfields, London, W13 9
4 bed terraced house for sale in Mayfield Avenue, Ealing, Northfields, London, W13 10
4 bed terraced house for sale in Mayfield Avenue, Ealing, Northfields, London, W13 11
4 bed terraced house for sale in Mayfield Avenue, Ealing, Northfields, London, W13 12
4 bed terraced house for sale in Mayfield Avenue, Ealing, Northfields, London, W13 13
4 bed terraced house for sale in Mayfield Avenue, Ealing, Northfields, London, W13 14
4 bed terraced house for sale in Mayfield Avenue, Ealing, Northfields, London, W13 15
4 bed terraced house for sale in Mayfield Avenue, Ealing, Northfields, London, W13 16
4 bed terraced house for sale in Mayfield Avenue, Ealing, Northfields, London, W13 17
4 bed terraced house for sale in Mayfield Avenue, Ealing, Northfields, London, W13 18
4 bed terraced house for sale in Mayfield Avenue, Ealing, Northfields, London, W13 19

Further Details

  • Status: Sold
  • Size: 1602 sq ft (148 .83 sq m)
  • Council Tax Band: Band F - £2507
  • Tenure: Freehold
  • Reference: 531181

What else you need to know

  • Property age bracket: Edwardian

Location

Similar Priced Properties

3 bed semi-detached house for sale in Amherst Gardens, Amherst Road, Ealing, London, W13
Sold STC
3 bed semi-detached house for sale in Amherst Gardens, Amherst Road, Ealing, London, W13 Guide Price £1,000,000
3 1 2

Nestled in the heart of Ealing's most prestigious pocket, Amherst Gardens presents a delightful opportunity for families seeking the comfort of suburban living with the convenience of city accessibility. This charming three-bedroom semi-detached...

4 bed terraced house for sale in Northfield Road, Ealing, London, W13
Sold STC
4 bed terraced house for sale in Northfield Road, Ealing, London, W13 Guide Price £1,000,000
4 3 1

❤️ What the owners love We love living on this quiet, friendly street. The south-facing living area is bright and warm and opens up to a lovely garden which is a sun trap during the day. In the colder months, our fireplace keeps us nice and cosy....

4 bed terraced house for sale in Mayfield Avenue, Ealing, London, W13
Sold STC
4 bed terraced house for sale in Mayfield Avenue, Ealing, London, W13 Guide Price £1,100,000
4 2 1

❤️ What the owner loves: After many wonderful years in our home on Mayfield Avenue, it’s time for us to move on – but not without sharing what makes this place so special. From the moment we stepped through the door, we knew this house was...