Sold
Guide Price £700,000

2 bed terraced house for sale in Darwin Road, Ealing, London, W5 (ref: 576989)

Shortlist

Key Features

  • Beautiful Early-Edwardian Cottage
  • Excellent Schools Nearby
  • Period Charm & Character
  • Close to Lovely Parks
  • Great Condition Throughout
  • Potential to Extend (STPP)
  • South-Facing Private Garden
  • Chain-Free
  • Buyer information pack available on request
Welcome to number 62, a charming early-Edwardian cottage, boasting a warm, honey-coloured brick exterior and plenty of period character, perfect for young families and downsizers alike.

Set back from the road with an easily maintained front garden, through the pretty white front door, you will find a traditional, immaculate and much-loved home. The decor is in soft, muted colours which, coupled with the large windows throughout, offer a real sense of space and light.

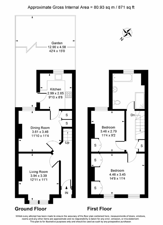
From the hall you turn left into a characterful, welcoming sitting room - the perfect setting to relax and unwind - complete with beautiful original fireplace, lovely wooden flooring, pretty cornicing and large Edwardian box-bay window.

The second reception room offers the ideal space for dining and home-working, also benefitting from plenty of natural light and quality flooring, in addition to attractive, useful, fitted shelving and cupboards. The kitchen is bright and well-appointed, and offers a new owner opportunity to extend in the future.

Accessed from the kitchen is a long south facing garden, mostly paved in sandstone with a pretty palm tree, areas of planting and several established shrubs. This lovely sun-trap offers plenty of room for barbeques and al fresco dining.

From the hall, the stairs rise to two double bedrooms and a generous, stylish bathroom with separate shower. Both bedrooms benefit from ample floor space and a wealth of bespoke, built-in wardrobes.

Darwin Road is a quiet, tree-lined street with a genuine community feel, perfectly situated to enjoy the convenience of local shops, cafes and restaurants in Northfields, South Ealing and beyond. For lovers of green spaces there are several parks to stroll to including Gunnersbury, Lammas, Blondin and Boston Manor. It is within easy walking distance of public transport links, including South Ealing and Northfields (Piccadilly Line) and Ealing Broadway (Elizabeth Line, Central Line, District Line and National Rail). The incredibly convenient 65 bus route is only a few minutes away on foot and for motorists, the A4 / M4 is just down the road!

This delightful cottage exudes a feeling of calm and a true sense of peace - a sanctuary from the hustle and bustle of city life. Perfect the way it is, but also with genuine scope to extend at the rear and into the loft (STPP).

Get in touch today to arrange a viewing and begin your exciting buying journey. Note that most of our Sellers offer a Reservation Agreement to guarantee their commitment and offer buyers greater security of transaction. Feel free to ask us for further information.

Stamp duty due

Based on a sale price of £700,000 the total amount of stamp duty payable will be:

*

Last updated: The calculator has been updated to reflect changes in stamp duty following the Autumn Budget on 30th October 2024 for April 1st 2025 onwards.

* This value is based on the standard rate and not applicable to first-time buyers or buy-to-let / second home buyers.

20 Property images

2 bed terraced house for sale in Darwin Road, Ealing, London, W5 0
2 bed terraced house for sale in Darwin Road, Ealing, London, W5 1
2 bed terraced house for sale in Darwin Road, Ealing, London, W5 2
2 bed terraced house for sale in Darwin Road, Ealing, London, W5 3
2 bed terraced house for sale in Darwin Road, Ealing, London, W5 4
2 bed terraced house for sale in Darwin Road, Ealing, London, W5 5
2 bed terraced house for sale in Darwin Road, Ealing, London, W5 6
2 bed terraced house for sale in Darwin Road, Ealing, London, W5 7
2 bed terraced house for sale in Darwin Road, Ealing, London, W5 8
2 bed terraced house for sale in Darwin Road, Ealing, London, W5 9
2 bed terraced house for sale in Darwin Road, Ealing, London, W5 10
2 bed terraced house for sale in Darwin Road, Ealing, London, W5 11
2 bed terraced house for sale in Darwin Road, Ealing, London, W5 12
2 bed terraced house for sale in Darwin Road, Ealing, London, W5 13
2 bed terraced house for sale in Darwin Road, Ealing, London, W5 14
2 bed terraced house for sale in Darwin Road, Ealing, London, W5 15
2 bed terraced house for sale in Darwin Road, Ealing, London, W5 16
2 bed terraced house for sale in Darwin Road, Ealing, London, W5 17
2 bed terraced house for sale in Darwin Road, Ealing, London, W5 18
2 bed terraced house for sale in Darwin Road, Ealing, London, W5 19

Further Details

  • Status: Sold
  • Size: 871 sq ft (80 .92 sq m)
  • Council Tax Band: Band E - £2381
  • Tenure: Freehold
  • Parking Spaces: Permit
  • Outside Spaces: Back Garden
  • Reference: 576989

What else you need to know

  • Property age bracket: Edwardian

Location

Similar Priced Properties

2 bed apartment for sale in Mattock Lane, Ealing, London, W5
Sold STC
2 bed apartment for sale in Mattock Lane, Ealing, London, W5 Guide Price £675,000
2 1 1

What the owner loves: We’ve really enjoyed living in this apartment and the area. The neighbourhood is vibrant, diverse, and set in a picturesque, welcoming environment. Walpole Park is right at the doorstep — with the beautiful Pitzhanger Manor...

3 bed apartment for sale in Ealing Court Mansions, St. Marys Road, Ealing, London, W5
Sold
3 bed apartment for sale in Ealing Court Mansions, St. Marys Road, Ealing, London, W5 Guide Price £695,000
3 2 1

Gorgeous Ground Floor Flat In A Prime Olde Ealing Location. This superb Victorian conversion flat has spacious rooms and period features aplenty. It’s a fabulous blank canvas in beautiful grounds, only a stone’s throw from the St Mary’s Road...

3 bed terraced house for sale in Endsleigh Road, Ealing, London, W13
Sold
3 bed terraced house for sale in Endsleigh Road, Ealing, London, W13 Guide Price £700,000
3 1 2

What the owner loves ❤: We bought Endsleigh Road in 1991, thirty-two years ago. Like it still is today, West London was growing and, if you’re lucky, affordable for couples starting families. Though dusty and time-worn, the house endeared itself...