Let
£2,725 per month

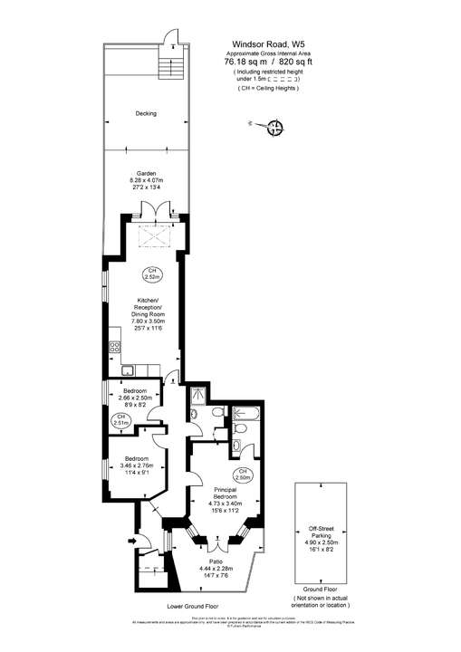
3 bed apartment to rent in Windsor Road, Ealing, London, W5

Shortlist

Key Features

  • Newly renovated three bedroom two bathroom garden flat
  • Amazing location
  • Five minute walk to Ealing Broadway station
  • Fully fitted modern kitchen
  • Large master bedroom with built in storage
  • Private garden
  • Allocated off-street parking
  • Virtual staging used on some images
Welcome to this exquisitely renovated three-bedroom, two-bathroom garden flat situated in the prestigious Windsor Road. Offering a generous 820 square feet of elegant living space, this property is tailored to the discerning tastes of young professionals seeking both style and convenience in one of London's most desirable postcodes.

As you step inside, you'll be greeted by a modern, fully fitted kitchen that's sure to inspire your culinary exploits. The kitchen's sleek design and high-end appliances are matched only by the thoughtful layout that maximises both style and functionality.

The spacious master bedroom is a true retreat, featuring large built-in storage solutions to keep your sanctuary clutter-free. Two additional bedrooms offer ample space for guests or home offices, each finished to an impeccable standard.

The living area opens up to your own private garden, providing a peaceful oasis for relaxation or a spot of alfresco dining. The garden's seclusion and tranquillity make it a rare find in the city, perfect for unwinding after a long day's work.

Just a five-minute stroll from Ealing Broadway station, this property promises a swift commute into the heart of London, while still offering the charm and community spirit of Ealing's neighbourhoods.

An allocated off-street parking space adds to the convenience, ensuring your vehicle is kept safe and secure.

With every detail carefully considered, this garden flat on Windsor Road is more than just a home; it's a lifestyle choice for those looking to blend urban living with suburban comfort. Don't miss out on this remarkable opportunity to make it yours.

17 Property images

3 bed apartment to rent in Windsor Road, Ealing, London, W5 0
3 bed apartment to rent in Windsor Road, Ealing, London, W5 1
3 bed apartment to rent in Windsor Road, Ealing, London, W5 2
3 bed apartment to rent in Windsor Road, Ealing, London, W5 3
3 bed apartment to rent in Windsor Road, Ealing, London, W5 4
3 bed apartment to rent in Windsor Road, Ealing, London, W5 5
3 bed apartment to rent in Windsor Road, Ealing, London, W5 6
3 bed apartment to rent in Windsor Road, Ealing, London, W5 7
3 bed apartment to rent in Windsor Road, Ealing, London, W5 8
3 bed apartment to rent in Windsor Road, Ealing, London, W5 9
3 bed apartment to rent in Windsor Road, Ealing, London, W5 10
3 bed apartment to rent in Windsor Road, Ealing, London, W5 11
3 bed apartment to rent in Windsor Road, Ealing, London, W5 12
3 bed apartment to rent in Windsor Road, Ealing, London, W5 13
3 bed apartment to rent in Windsor Road, Ealing, London, W5 14
3 bed apartment to rent in Windsor Road, Ealing, London, W5 15
3 bed apartment to rent in Windsor Road, Ealing, London, W5 16

Further Details

  • Status: Let
  • Council Tax Band: Band E - £2381
  • Deposit: £3,144
  • Size: 820 sq ft (76 .18 sq m)
  • Reference: 616168

Location

Similar Priced Properties

2 bed apartment to rent in Wilde House, Avenue Road, Acton, London, W3
Let
2 bed apartment to rent in Wilde House, Avenue Road, Acton, London, W3 £2,500 per month
2 2 1

What The Owner Loves: The balcony facing the park is my favourite part of my flat. Sipping coffee in the morning, listening to the birds and watching people passing by or kids playing in the playground are moments I will miss very much! I had 5...

2 bed house to rent in Broomfield Road, Ealing, London, W13
Let
2 bed house to rent in Broomfield Road, Ealing, London, W13 £2,600 per month
2 1 1

What the owners love.... The buzz of Ealing: If you are already living in Ealing, then you will be well aware of this. There is always something going on locally – the Ealing Art Trail in September; the local half-marathon, which passes right past...

3 bed semi-detached house to rent in Harp Road, Hanwell, London, W7
Let
Video Walkthrough Available
3 bed semi-detached house to rent in Harp Road, Hanwell, London, W7 £2,750 per month
3 1 2

Welcome to Harp Road, a gorgeous semi-detached family home that is sure to capture the attention of a wide range of property tenants. With its newly renovated two-story layout, beautiful garden, and quiet yet convenient location, there is so much to...