Guide Price £800,000

3 bed end of terrace house for sale in Meadvale Road, Ealing, London, W5 (ref: 675706)

Shortlist

Key Features

  • Three-bedroom end-of-terrace period cottage
  • First time to market in 50 years
  • Probate sale (no onward chain)
  • Brentham Garden Estate Conservation Area
  • South-facing garden
  • Garage and off-street parking (rare for the area)
  • Significant potential to extend (STPP: loft, rear, side)
  • Over two floors
  • Close to Pitshanger Lane, Ealing Broadway & fantastic schooling
❤️ What the Owner Loves

This house has been a much-loved family home for over half a century. Generations have enjoyed the leafy setting, the quiet yet connected location, and the character of the Brentham Garden Estate. The south-facing garden has been the backdrop to countless family occasions, and the rare combination of a garage and off-street parking made day-to-day life that bit easier.

✨ Why We’d Buy It

Homes like this don’t come up very often – in fact, this is the first time in 50 years it’s been on the market. It’s on the highly sought-after Brentham Estate, where period charm and a strong community feel are matched by access to fantastic schooling, Pitshanger Village, and Ealing Broadway. The house itself offers huge potential: whether it’s a loft conversion, side return, or rear extension (all STPP), you’ve got a canvas to create something really special. The south-facing garden is a sun-trap, and having both a garage and off-street parking here is about as rare as it gets. It’s an opportunity to shape the next 50 years of memories.

🏡 Summary

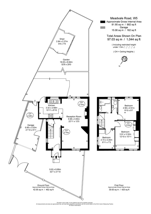
Located on the renowned Brentham Garden Estate Conservation Area, this three-bedroom end-of-terrace period cottage is available with no onward chain. The property is arranged over two floors and currently comprises a large reception room, separate kitchen, three bedrooms, and a family bathroom. Externally, there is a south-facing garden, garage, and off-street parking. The house offers significant scope to extend (subject to the usual consents) to the loft, side, and rear. Meadvale Road is well located for the open spaces of Pitshanger Park, the shops and cafés of Pitshanger Lane, and excellent local schooling options.

Download Brochure

Stamp duty due

Based on a sale price of £800,000 the total amount of stamp duty payable will be:

*

Last updated: The calculator has been updated to reflect changes in stamp duty following the Autumn Budget on 30th October 2024 for April 1st 2025 onwards.

* This value is based on the standard rate and not applicable to first-time buyers or buy-to-let / second home buyers.

15 Property images

3 bed end of terrace house for sale in Meadvale Road, Ealing, London, W5 0
3 bed end of terrace house for sale in Meadvale Road, Ealing, London, W5 1
3 bed end of terrace house for sale in Meadvale Road, Ealing, London, W5 2
3 bed end of terrace house for sale in Meadvale Road, Ealing, London, W5 3
3 bed end of terrace house for sale in Meadvale Road, Ealing, London, W5 4
3 bed end of terrace house for sale in Meadvale Road, Ealing, London, W5 5
3 bed end of terrace house for sale in Meadvale Road, Ealing, London, W5 6
3 bed end of terrace house for sale in Meadvale Road, Ealing, London, W5 7
3 bed end of terrace house for sale in Meadvale Road, Ealing, London, W5 8
3 bed end of terrace house for sale in Meadvale Road, Ealing, London, W5 9
3 bed end of terrace house for sale in Meadvale Road, Ealing, London, W5 10
3 bed end of terrace house for sale in Meadvale Road, Ealing, London, W5 11
3 bed end of terrace house for sale in Meadvale Road, Ealing, London, W5 12
3 bed end of terrace house for sale in Meadvale Road, Ealing, London, W5 13
3 bed end of terrace house for sale in Meadvale Road, Ealing, London, W5 14

Further Details

  • Status: Available
  • Size: 1044 sq ft (96 .99 sq m)
  • Council Tax Band: Band E - £2495
  • Tenure: Freehold
  • Parking Spaces: Driveway, Garage, Off Street, On Street
  • Outside Spaces: Back Garden, Enclosed Garden, Front Garden, Private Garden, Rear Garden
  • Reference: 675706

What else you need to know

Utility supply, rights and restrictions

  • Utility supply
    • Electricity supply: Mains supply
    • Heating supply: Gas central
    • Sewerage: Mains supply
    • Water supply: Mains supply
  • Other information
    • Has gas: Yes
    • Property age bracket: Edwardian

Location

Similar Priced Properties

3 bed apartment for sale in Castlebar Park, Ealing, London, W5
Sold
Video Walkthrough Available
3 bed apartment for sale in Castlebar Park, Ealing, London, W5 Guide Price £795,000
3 2 1

What the owners love: "When we found this flat we fell in love straight away. It was so new, modern, bright and airy, had a huge garden, its own driveway, no shared front door and even had an outbuilding for whatever we wanted to use it for! It feels...

3 bed semi-detached house for sale in Walton Way, Acton, London, W3
Sold STC
3 bed semi-detached house for sale in Walton Way, Acton, London, W3 Guide Price £795,000
3 2 2

What the owners love: The current owners love the large, beautifully maintained hedged garden that provides a serene outdoor space, as well as the spacious two-car driveway, offering ample off-street parking. They were initially drawn to the...

3 bed terraced house for sale in Regina Terrace, West Ealing, Northfields, London, W13
Sold
Video Walkthrough Available
3 bed terraced house for sale in Regina Terrace, West Ealing, Northfields, London, W13 Guide Price £800,000
3 1 2

Have You Outgrown Your Apartment? Do you crave more room, outdoor space, no silly leasehold rules or noisy upstairs neighbours? If so, this could be the perfect next step. It’s ready to move into, with plenty of potential to create a stunning...