Sold
Guide Price £700,000

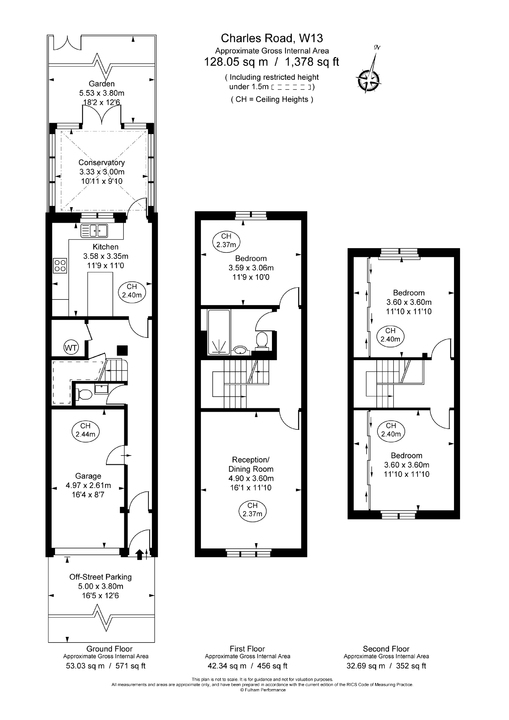
3 bed terraced house for sale in Charles Road, Ealing, London, W13 (ref: 593081)

Shortlist

Key Features

  • Superb Freehold House
  • Circa 1400 Sq Ft
  • Three Double Bedrooms
  • Lovely Secluded Private Garden
  • Garage & Off-Street Parking
  • Generous Living Room
  • Highly Desirable Location
  • Enviable School Catchment
  • Close to Wonderful Parks
  • Moments from Pitshanger Village
  • Buyer information pack available on request
What the owner loves ❤️:

We love how much our home has with three double bedrooms as well as a spacious living room. The garage also means we have loads of storage for our buggies and bikes meaning the rest of the house doesn’t get cluttered.

The conservatory is a favourite room and we like to have breakfast together here and open the doors to have BBQs and friends round in the summer.

It is also a wonderful location being so close to Cleveland Park, Pitshanger Park and Pitshanger Lane.

What the agent says:

Delight in the harmonious blend of comfort and convenience at Charles Road, an exquisite freehold residence in a highly sought-after pocket of North Ealing. Perfectly crafted for family living, this property boasts a generous plot size of 1378 square feet, presenting a peaceful retreat in the heart of the city.

The heart of the home is the expansive dine-in kitchen, which seamlessly opens into a charming conservatory, bathing the space in natural light and providing a serene outlook onto the lovely, secluded private garden. Here, children can frolic freely while adults enjoy alfresco dining or simply bask in the tranquillity of this personal oasis.

There is a genuinely spacious and inviting living room, perfect for entertaining or unwinding. The three double bedrooms assure ample space for all family members, while the modern bathroom and additional cloakroom cater to the practicalities of family life.

Further tangible benefits include off-street parking and a large garage, which presents a versatile space for storage, a gym or...game of snooker anyone?

This fantastic family house is nestled within an enviable school catchment area, making it an excellent choice for those prioritising education. Furthermore, its proximity to the delightful open spaces of several parks and the award-winning Pitshanger Village ensures a lifestyle where local amenities and community spirit are on the doorstep.

Charles Road is more than just a house; it's a cherished home where memories are waiting to be made for a new family. Don't miss the opportunity to secure this gem in a highly desirable corner of London, where the charm of suburban living meets the vibrancy of city life.

Note that most of our Sellers offer a Reservation Agreement to guarantee their commitment and offer Buyers greater security of transaction. Ask the agent for further information.

Stamp duty due

Based on a sale price of £700,000 the total amount of stamp duty payable will be:

*

Last updated: The calculator has been updated to reflect changes in stamp duty following the Autumn Budget on 30th October 2024 for April 1st 2025 onwards.

* This value is based on the standard rate and not applicable to first-time buyers or buy-to-let / second home buyers.

12 Property images

3 bed terraced house for sale in Charles Road, Ealing, London, W13 0
3 bed terraced house for sale in Charles Road, Ealing, London, W13 1
3 bed terraced house for sale in Charles Road, Ealing, London, W13 2
3 bed terraced house for sale in Charles Road, Ealing, London, W13 3
3 bed terraced house for sale in Charles Road, Ealing, London, W13 4
3 bed terraced house for sale in Charles Road, Ealing, London, W13 5
3 bed terraced house for sale in Charles Road, Ealing, London, W13 6
3 bed terraced house for sale in Charles Road, Ealing, London, W13 7
3 bed terraced house for sale in Charles Road, Ealing, London, W13 8
3 bed terraced house for sale in Charles Road, Ealing, London, W13 9
3 bed terraced house for sale in Charles Road, Ealing, London, W13 10
3 bed terraced house for sale in Charles Road, Ealing, London, W13 11

Further Details

  • Status: Sold
  • Size: 1378 sq ft (128 .02 sq m)
  • Council Tax Band: Band E - £2381
  • Tenure: Freehold
  • Parking Spaces: Driveway, Off Street, Permit, Residents
  • Outside Spaces: Back Garden, Private Garden, Rear Garden, Patio
  • Reference: 593081

What else you need to know

  • Property age bracket: 1950 to 1970

Location

Similar Priced Properties

2 bed apartment for sale in Mattock Lane, Ealing, London, W5
Sold STC
2 bed apartment for sale in Mattock Lane, Ealing, London, W5 Guide Price £675,000
2 1 1

What the owner loves: We’ve really enjoyed living in this apartment and the area. The neighbourhood is vibrant, diverse, and set in a picturesque, welcoming environment. Walpole Park is right at the doorstep — with the beautiful Pitzhanger Manor...

3 bed apartment for sale in Ealing Court Mansions, St. Marys Road, Ealing, London, W5
Sold
3 bed apartment for sale in Ealing Court Mansions, St. Marys Road, Ealing, London, W5 Guide Price £695,000
3 2 1

Gorgeous Ground Floor Flat In A Prime Olde Ealing Location. This superb Victorian conversion flat has spacious rooms and period features aplenty. It’s a fabulous blank canvas in beautiful grounds, only a stone’s throw from the St Mary’s Road...

3 bed terraced house for sale in Endsleigh Road, Ealing, London, W13
Sold
3 bed terraced house for sale in Endsleigh Road, Ealing, London, W13 Guide Price £700,000
3 1 2

What the owner loves ❤: We bought Endsleigh Road in 1991, thirty-two years ago. Like it still is today, West London was growing and, if you’re lucky, affordable for couples starting families. Though dusty and time-worn, the house endeared itself...