This website is under development as improvements are being made
Sold
Guide Price £800,000

3 bed terraced house for sale in Malthouse Square, Beaconsfield, Buckinghamshire, HP9 (ref: 635154)

Shortlist

Key Features

  • Buyer Information Pack Available on Request
  • Chain Free
  • Double fronted terraced house
  • Seldomly seen garden access for a mid-terrace
  • Two Front Receptions Rooms
  • Full Refurbished including new double glazed windows, central heating and re-wire
  • Utility and Downstairs WC.
  • En-Suite to Principal Bedroom
  • Flexible layout to be arranged to buyers preference and needs
  • Grohe Hot Tap in Kitchen
  • West Facing Garden
  • Off Street Parking for 3/4 Vehicles
  • 3 Minute walk to Beaconsfield Old Town
  • Transport connections from Beaconsfield Station (Chiltern Line)
  • Great Selection of Pubs & Restaurants
  • Overlooking Malthouse Square Green
  • Next Malthouse Square Play Area
Nestled in the heart of Beaconsfield, Buckinghamshire, this impeccable three-bedroom terrace property at Malthouse Square presents a rare opportunity for first-time buyers, upsizers, downsizers, and young families seeking a delightful blend of comfort and convenience.

Recently fully refurbished, the residence boasts new double-glazed windows, central heating, and a complete electrical re-wire, ensuring peace of mind for the discerning homeowner. The house features a charming double frontage, with two inviting reception rooms, offering ample space for both entertaining and family living.

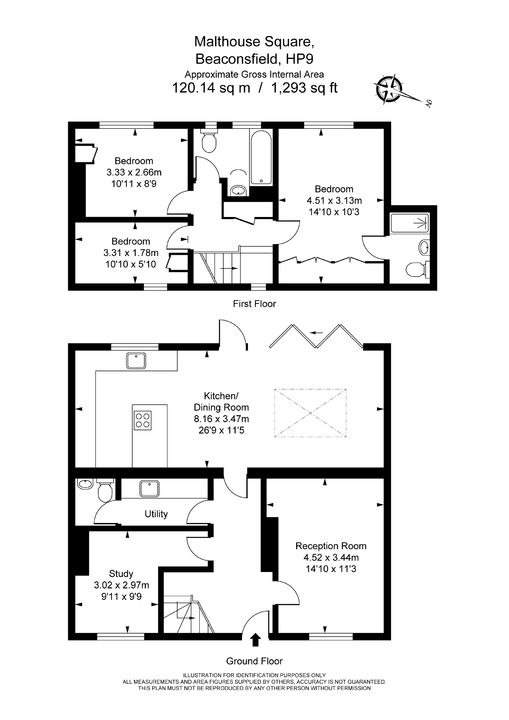
Spanning 1293 square feet, this property affords a seldom-seen garden access for a mid-terrace home, complemented by a large, west-facing, lawned garden that basks in the afternoon sun, creating a serene retreat for relaxation or alfresco dining.

Thoughtfully designed, the interior layout is flexible, ready to adapt to your personal needs and preferences. Luxury touches include a Grohe hot tap in the kitchen, utility space, and a convenient downstairs WC. The principal bedroom is a true haven, complete with a stylish en-suite, adding a touch of elegance and functionality to everyday living.

Additional practicalities are well catered for too, with off-street parking for 3/4 vehicles and the additional benefit of being chain-free for an easier transition. For those commuting, Beaconsfield Station, on the Chiltern Line, is serviceable via the 102, 103 & 104 buses each of which is around 15 mins door to door.

Malthouse Square is a vibrant community, overlooking the picturesque green and next to the play area, perfect for young families. A fantastic selection of pubs, restaurants, and the charm of Beaconsfield Old Town await your exploration.

Prospective buyers are invited to request a comprehensive Buyer Information Pack, detailing everything one needs to know about this delightful residence. Make this beautiful, fully refurbished Malthouse Square property the backdrop to your new beginning.

Note that most of our Sellers offer a Reservation Agreement to guarantee their commitment and offer buyers greater security of transaction.

Details will be provided before the property is removed from the market following an acceptance of an offer. Ask the agent for further information.

Declaration of interest - In accordance with the Estate Agents (Provision for information) Regulations 1991, the agent wishes to advise potential buyers that the vendor of this property is related to a director of the company advertising its sale.

Stamp duty due

Based on a sale price of £800,000 the total amount of stamp duty payable will be:

*

Last updated: The calculator has been updated to reflect changes in stamp duty following the Autumn Budget on 30th October 2024 for April 1st 2025 onwards.

* This value is based on the standard rate and not applicable to first-time buyers or buy-to-let / second home buyers.

Further Details

  • Status: Sold
  • Size: 1293 sq ft (120 .12 sq m)
  • Council tax band: D
  • Council Tax Amount: £1948
  • Tenure: Freehold
  • Parking Spaces: Driveway, Off Street, On Street
  • Outside Spaces: Back Garden, Private Garden, Rear Garden
  • Reference: 635154

What else you need to know

  • Has gas: Yes
  • Property age bracket: 1920 to 1930

Location