Sold
Guide Price £800,000

3 bed terraced house for sale in Regina Terrace, West Ealing, Northfields, London, W13 (ref: 500734)

Shortlist

Key Features

  • OPEN DAY - SATURDAY 25th JUNE 2022
  • 3 bedroom family home
  • Chain free
  • Scope to extend (STPP)
  • Close to Crossrail
  • Clever & Practical storage throughout
  • Popular Northfields location
  • Excellent transport links
  • Potential For Loft Extension (STPP)
  • Sought after local schools

Video

Video

View video
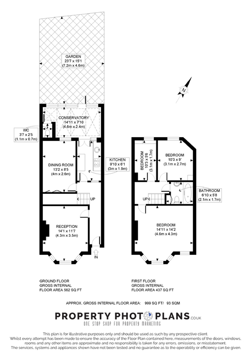
Have You Outgrown Your Apartment? Do you crave more room, outdoor space, no silly leasehold rules or noisy upstairs neighbours? If so, this could be the perfect next step. It’s ready to move into, with plenty of potential to create a stunning forever home.

But getting a grown-up house like this doesn’t mean you’ve got to reach for the carpet slippers and cocoa! The fantastic Northfields / West Ealing location means you’ll never be stuck for something to do or somewhere new to eat.

If you’re used to apartment living or have been in a period conversion flat, one of the biggest changes will be the private garden for you to enjoy.

And this paved garden is the perfect introduction to living with outdoor space. It’s incredibly low maintenance so you won’t have to spend all weekend mowing or weeding. That means there’s more time for you to enjoy it, rather than just keep on top of it…

And if the weather’s a bit grim you can always take a seat in the conservatory and look out with your coffee and the weekend papers...

Another big difference is likely to be two reception rooms rather than one.

There’s a welcoming lounge at the front with a bay window overlooking the street and a separate dining room at the back.

If you’re not quite ready for formal dining you could pop a pool table in there or turn it into a games room or home cinema.

There’s a galley kitchen with modern integrated appliances and plenty of storage.

It’s in great condition but long term you may want to open up the kitchen, dining room and conservatory to make a more sociable cooking, dining and living space.

There’s three bedrooms upstairs - the spacious master bedroom with a bay window at the front, another double and a single bedroom at the rear.

If you often find yourself working from home, the single bedroom could be perfectly kitted out as a home office.

The tiled bathroom is modern & stylish with a boiler-powered shower over the bath. You'll love having an envigorating morning shower - not like the weak electric showers you get in many newbuild apartments. And it’s also the perfect place for a relaxing soak at the end of a long day.

Located on a quiet and leafy street, you’re less than 10 minutes walk from the independent local shops and cafes on Northfield Avenue.

And if you’re looking for big name retailers or a cheeky Nando’s, it’s just as easy to get to Ealing Broadway by public transport, or a 20 minute walk.

There’s so much on your doorstep but you’re still only a 10 minute walk from West Ealing station.

Here you can hop onto a new Elizabeth Line or overland train which will get you to Paddington in less than 20 minutes.

If you need a Plan B, it’s good to have a couple of fallback options. Northfields & Ealing Broadway stations are both nearby, giving access to the Piccadilly, Central and District lines

If you love outdoor space, Dean Gardens is only 2 minute's walk away.

You’re also perfectly positioned near Walpole Park and Lammas Park, both are less than 15 minutes away.

It might not be a #1 priority right now but it’s good to know that when the time is right to start a family, there are some fantastic local schools nearby.

There’s a great choice of primary and secondary schools within walking distance (all rated Good or Outstanding by Ofsted), along with Clifton Lodge independent school.

If you’re looking to make that next move up the housing ladder, this spacious home has plenty to think about.

It’s ready to move into, combining modern features and period charm.

It’s in a fantastic location - with so much on your doorstep and a close-knit, friendly community who will welcome you with open arms.

We’re expecting plenty of interest - so make sure you don’t miss out by calling 020 3488 6445 to book a viewing.

What the owners love:

This was our first home as newlyweds and we’ve loved living here and couldn’t imagine moving until the grandkids came along.

It’s a lovely quiet, tree-lined street with great neighbours, some of whom have been here longer than we have, and we’ve been here 44 years! There is a mix of young families and retirees on the street and we all look out for each other.

The wider community is very friendly and supportive too, and there are many local groups from “Ealing wildlife group” to “Ealing repair cafe” not to mention all the fitness-related groups and everything else in between. Ealing also has its own annual marathon and is home to London’s oldest allotments which are a couple of streets away.

Our daughters went to school locally and it was great having Walpole and Lammas park nearby with Elthorne & Bunny park not too far away either. There was always lots on offer for young children and West Ealing library was a firm favourite.

The transport links are superb and within easy reach. West Ealing mainline station with the new Elizabeth line, as well as Northfields & Ealing Broadway giving access to the Piccadilly, central and district lines. The bus routes are extensive too and the transport links was one of the main reasons we chose this locality. It’s great when we need to get home from central London gigs and concerts and when our daughters were teenagers. Also a real boon whilst working in central London and having to travel all over the city for client meetings.

We love being able to walk to the independent shops on Northfields Avenue and to be able to enjoy all types of cuisine on our doorstep. Particularly useful is having Sainsbury’s and Waitrose nearby, together with the 24-hour continental shops. I shall miss popping out to buy fresh herbs and olives any time of day or night! Also lovely is having the weekly farmer’s market and all the fresh produce on offer.

As retirees, we really enjoy the local music scene and the annual Blues festival in Walpole park. The theatre is within walking distance and the Watermans Arts Centre with its cinema and theatre, on the river in Brentford is a short bus ride away.

All in all, it’s been a wonderful place to live and bring up our family with lots to offer at every stage of our lives and we will really miss it.

Stamp duty due

Based on a sale price of £800,000 the total amount of stamp duty payable will be:

*

Last updated: The calculator has been updated to reflect changes in stamp duty following the Autumn Budget on 30th October 2024 for April 1st 2025 onwards.

* This value is based on the standard rate and not applicable to first-time buyers or buy-to-let / second home buyers.

13 Property images

3 bed terraced house for sale in Regina Terrace, West Ealing, Northfields, London, W13 0
3 bed terraced house for sale in Regina Terrace, West Ealing, Northfields, London, W13 1
3 bed terraced house for sale in Regina Terrace, West Ealing, Northfields, London, W13 2
3 bed terraced house for sale in Regina Terrace, West Ealing, Northfields, London, W13 3
3 bed terraced house for sale in Regina Terrace, West Ealing, Northfields, London, W13 4
3 bed terraced house for sale in Regina Terrace, West Ealing, Northfields, London, W13 5
3 bed terraced house for sale in Regina Terrace, West Ealing, Northfields, London, W13 6
3 bed terraced house for sale in Regina Terrace, West Ealing, Northfields, London, W13 7
3 bed terraced house for sale in Regina Terrace, West Ealing, Northfields, London, W13 8
3 bed terraced house for sale in Regina Terrace, West Ealing, Northfields, London, W13 9
3 bed terraced house for sale in Regina Terrace, West Ealing, Northfields, London, W13 10
3 bed terraced house for sale in Regina Terrace, West Ealing, Northfields, London, W13 11
3 bed terraced house for sale in Regina Terrace, West Ealing, Northfields, London, W13 12

Further Details

  • Status: Sold
  • Size: 999 sq ft (92 .81 sq m)
  • Council Tax Band: Band E - £2121
  • Tenure: Freehold
  • Reference: 500734

Location

Similar Priced Properties

3 bed apartment for sale in Castlebar Park, Ealing, London, W5
Sold
Video Walkthrough Available
3 bed apartment for sale in Castlebar Park, Ealing, London, W5 Guide Price £795,000
3 2 1

What the owners love: "When we found this flat we fell in love straight away. It was so new, modern, bright and airy, had a huge garden, its own driveway, no shared front door and even had an outbuilding for whatever we wanted to use it for! It feels...

3 bed semi-detached house for sale in Walton Way, Acton, London, W3
Sold STC
3 bed semi-detached house for sale in Walton Way, Acton, London, W3 Guide Price £795,000
3 2 2

What the owners love: The current owners love the large, beautifully maintained hedged garden that provides a serene outdoor space, as well as the spacious two-car driveway, offering ample off-street parking. They were initially drawn to the...

4 bed terraced house for sale in Princes Gardens, Acton, Ealing, London, W3
Sold
Video Walkthrough Available
4 bed terraced house for sale in Princes Gardens, Acton, Ealing, London, W3 Guide Price £800,000
4 1 3

This Isn't A Mock Tudor Mid Terrace - It's A Time Machine. Hanger Hill Garden Estate will take you back to a tranquil & idyllic bygone era. But this superb family home is modernised & only 10 minutes from the totally 21st century Westfield. Located...